Ház
Origó
HázOrigoval pont a központban

Baranya megye, Pécs


 

Ingatlan adatai

Irányár: 65 125 000 Ft
Típus: lakás (újépítésű)
Kategória: eladó
Alapterület: 52 m2
Fűtés: -
Állapota: új
Szobák száma: 2
Építés éve: 2026
Szintek száma: -

Részletes leírás

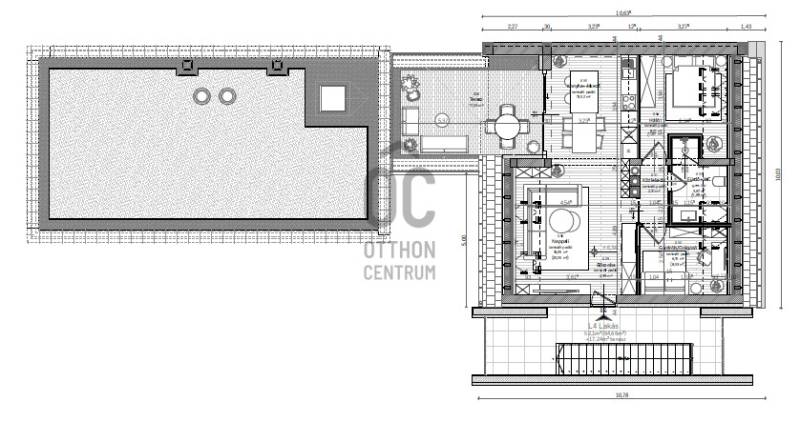
Pécs belvárosának peremén, nyugodt, családi házas környezetben egy elismert referenciákkal és jelentős szakmai tapasztalattal rendelkező generálkivitelező 2025 telén induló projektjében épül egy modern, téglaépítésű társasház. A két épületből álló, háromszintes ingatlan összesen 4 lakást és 4 gépkocsi-beállót foglal magában. A magas műszaki színvonalon, exkluzív kivitelezéssel készülő, „A” energetikai besorolású, kulcsrakész lakások várhatóan 2026 őszén kerülnek átadásra, és már most leköthetők.A lakások fűtéséről egyedi gázkazánok gondoskodnak, míg a hűtést klímaberendezések biztosítják. Az egész lakásban padlófűtés működik, amely a nappaliban és a hálószobákban külön szabályozható. A fürdőszobában elektromos törölközőszárítós radiátor is helyet kap. A nyílászárók háromrétegű üvegezésű, motoros redőnnyel ellátott, világosszürke alumínium szerkezetek lesznek. A 40 cm vastag falazatra további 15 cm szigetelés kerül. A lakások tágas, világos terekkel, nagy ablakokkal és csendes hálószobákkal készülnek.A bemutatott lakás a földszinten található (a tervrajzon L4 jelöléssel), 51,2 m² lakóterülettel rendelkezik. A lakáshoz opcionálisan vásárolható egy 10 m²-es fedett, belső udvari gépkocsibeálló, valamint egy 4,1 m²-es tárolóhelyiség. A parkolóhelyek mindegyikében kiépített elektromosautó-töltési lehetőség áll rendelkezésre.Az ingatlan elhelyezkedése különösen kedvező, mivel a város egyetemisták által kedvelt részén található, így kiváló választás befektetési célra is. Igény esetén segítséget nyújtunk a lakás bérbeadásában is.Figyelem: a megadott ár nettó, amelyre 5% áfa kerül felszámításra.

További adatok

Telekterület: -
Kert mérete: -
Erkély mérete: 16 m2
Felszereltség: -
Parkolás: -
Kilátás: utcai
Egyéb extrák:  
-

Hirdető adatai

Hirdető neve: Otthon Centrum
Kapcsolattartó: Gangel Bence
Hirdető telefonszáma: +36 70 412 3166
Honlap: -