Ház
Origó
HázOrigoval pont a központban

Hajdú-Bihar megye, Balmazújváros


 

Ingatlan adatai

Irányár: 104 900 000 Ft
Típus: ház
Kategória: eladó
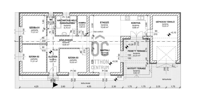
Alapterület: 126 m2
Fűtés: -
Állapota: új
Szobák száma: 4
Építés éve: 2026
Szintek száma: -

Részletes leírás

Balmazújvároson hőszivattyús, amerikai konyhás - tágas nappalival rendelkező 3 hálószobás, új építésű családi ház eladó!Közelében, üzletek, helyi buszmegálló, iskola, óvoda. Kiváló választás, ha Debrecen közeli településen szeretné megtalálni új otthonát.Megbízható igényes kivitelezési munka, 2026 II- III. negyedévi átadással.Minőségi kivételezés mellett nagy hangsúly kerül az esztétikus megjelenésre is.A családi ház paraméterei:- telek mérete: 486 nm - a ház hasznos alapterülte: 125 nm- falazata: 30 cm -es Phorotherm tégla+ 15 cm vastag külső szigetelés- 3 rétegű hőszigetelt, kívül színes műanyag nyílászárók- beépített, elektromos alumínium redőnyök- gazdaságos, hőszivattyús rendszer biztosítja a használati meleg vizet és az otthon melegét melyhez a padlófűtés biztosítja a kellemes hőérzetet. hűtését nagyteljesítményű klíma biztosítja- antracit szinű, 3 rétegű, hőszigetelt üvegezéssel rendelkező, műanyag nyílászárók teszik világossá a teret, melyekhez beépített elektromos redőnyök készülnek- új, épített kerítés, térkövezett járda és gépkocsi beállók.- tágas világos terek és ideális térkihasználás jellemzi- fedett terasszal kapcsolatos konyha- étkező- nappali, 3 kényelmes méretű hálószoba, fürdőszoba és külön WC, mosókonyha és széles közlekedő- lakótérrel kapcsolatos 19nm- s garázs- az építkezés előrehaladott állapotban van, de még saját elképzelései szerint alakíthatja a belső színvilágot (burkolat, szaniter, falszín még választható)A városból Debrecen gyorsan, dugómentesen megközelíthető, akár saját gépkocsival, akár a folyamatosan fejlődő tömegközlekedéssel.Azoknak akik szeretik a kertvárosi, zöld környezetet, és fontos a nagyváros közelsége is.Hívjon, foglaljon időpontot a megtekintéshez!Hajdú-Bihar, Debrecen, Balmazújváros, ház, kert, eladó, új, modern, hőszivattyú, energiatakarékos, család, BMW, otthon,Angol leírás

További adatok

Telekterület: 486 m2
Kert mérete: 486 m2
Erkély mérete: 16 m2
Felszereltség: -
Parkolás: -
Kilátás: -
Egyéb extrák:  
-

Hirdető adatai

Hirdető neve: Otthon Centrum
Kapcsolattartó: Vécseiné Uri Erzsébet
Hirdető telefonszáma: +36 70 388 5001
Honlap: -