Ház
Origó
HázOrigoval pont a központban

Budapest, XV.kerület


Rákospalota 

Ingatlan adatai

Irányár: 155 000 000 Ft
Típus: ház
Kategória: eladó
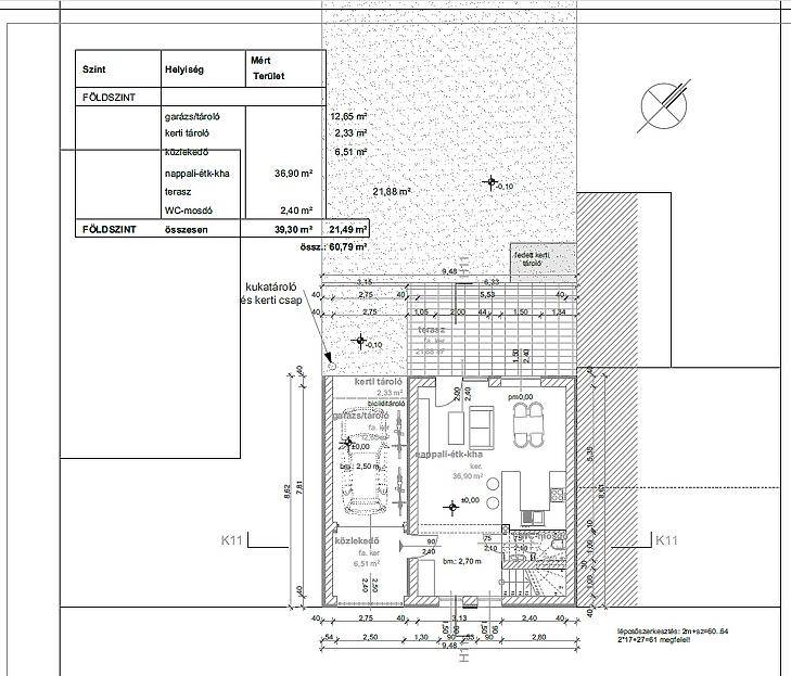
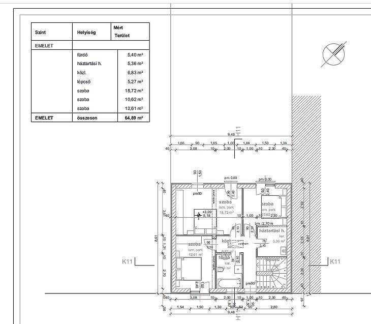
Alapterület: 125 m2
Fűtés: -
Állapota: új
Szobák száma: 4
Építés éve: 2026
Szintek száma: -

Részletes leírás

XV. KERÜLETBEN: CSENDES UTCÁBAN, 125 M2, ÚJ ÉPÍTÉSŰ, BESLŐ 2 SZINTES, AMERIKAI KONYHÁS NAPPALIS, 3 SZOBÁS CSALÁDI HÁZ, 341 M2 TELEKKEL, 22 M2 TERASSZAL, GARÁZZSAL, KERTI TÁROLÓVAL.VÁRHATÓ ÁTADÁSI IDŐ 2026 NYARA!!A HÁZ JELLEMZŐI:A földszinten tágas amerikai konyhás nappali, mellékhelyiség van, illetve a garázs és a 22 m2-es terasz. Az emeleten 3 szoba, egy háztartási helyiség (mosókonyha) és fürdőszoba került kialakításra. A házon egy 10 cm-es külső szigetelés lesz, antracit cseréptetővel lesz fedve. A nyílászárók 3 rétegű műanyag ablakok lesznek. A fűtést kondenzációs kazán, padlófűtés fogja biztosítani, egy fűtő-fűtő klíma is rendelkezésre fog állni. Burkolatok válaszhatóak 5000 Ft/m2 árban, a fürdőszobai felszerelések 300.000 Ft-ig az ár részét képezik.FINANSZÍROZÁS:Az ingatlan tehermentes, hitelre is megvásárolható. Bankfüggetlen tanácsadóink, az ország összes pénzintézete közül gyorsan és gördülékenyen találja meg az Önnek legmegfelelőbb konstrukciót, egyedi kedvezményekkel. A hitel közvetítés díjmentes.A hirdetésben szereplő adatok tájékoztató jellegűek.Várjuk hívását munkanapokon 09.00- 18:00 óra között.Amennyiben eladná saját ingatlanát, több mint 16 éve működő, kifejezetten a kerületre szakosodott irodánktól, INGYENES ÉRTÉKBECSLÉST kérhet.

További adatok

Telekterület: 341 m2
Kert mérete: 341 m2
Erkély mérete: -
Felszereltség: -
Parkolás: -
Kilátás: utcai
Egyéb extrák:  
-

Hirdető adatai

Hirdető neve: MPD Hungary Kft.
Kapcsolattartó: Imobiliare Kft.
Hirdető telefonszáma: +3612305153
Honlap: -