Ház
Origó
HázOrigoval pont a központban

Budapest, XIII.kerület


Visegrádi utca 

Ingatlan adatai

Irányár: 67 500 000 Ft
Típus: lakás (tégla)
Kategória: eladó
Alapterület: 39 m2
Fűtés: elektromos
Állapota: felújított
Szobák száma: 1
Építés éve: 1909
Szintek száma: -

Részletes leírás

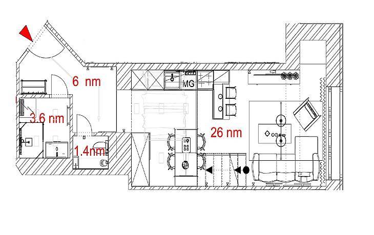
Eladó a Visegrádi utcában egy teljeskörűen felújított, 39 nm-es + 6 nm galériás, napfényes kis lakás. Az ingatlan az első emeleten helyezkedik el, amely a magasföldszintnek köszönhetően valójában második emeleti érzetet nyújt. A dél-nyugati fekvés előnye, hogy a lakás egész nap világos, barátságos hangulatú. A modern, beépített és gépesített konyha tökéletesen illeszkedik a térbe, míg a galéria kényelmes háló- vagy akár dolgozórészként is kiválóan használható, így a lakás minden négyzetmétere jól kihasznált. ( A képek készítésekor a villany még nem volt teljesen kész). A komfortérzetről elektromos padlófűtés és hűtő-fűtő klíma gondoskodik. Ez a kompakt, mégis jól élhető otthon ideális választás lehet első lakásnak, de kiváló befektetési lehetőség is, hiszen könnyen kiadható. Az ingatlan ügyvédi megosztással rendelkezik. Elhelyezkedése kiváló: néhány perc sétára található a Westend City Center és a Szent István körút. A közelben elérhető az M3-as metró, valamint a 4–6-os villamos és számos buszjárat. A környék rendezett, közkedvelt és folyamatosan fejlődő, mégis nyugodt, élhető környezetet biztosít a mindennapokhoz. Kérdés vagy megtekintési szándék esetén keressen bizalommal! Ügyfeleink részére díjmentes, bankfüggetlen hitelügyintézést biztosítunk.

További adatok

Telekterület: -
Kert mérete: -
Erkély mérete: -
Felszereltség: -
Parkolás: -
Kilátás: utcai
Egyéb extrák:  
-

Hirdető adatai

Hirdető neve: MPD Hungary Kft.
Kapcsolattartó: Casa Profitto Nuovo Kft.
Hirdető telefonszáma: +36704147759
Honlap: -