Ház
Origó
HázOrigoval pont a központban

Budapest, II.kerület


 

Ingatlan adatai

Irányár: 240 000 000 Ft
Típus: ház
Kategória: eladó
Alapterület: 546 m2
Fűtés: -
Állapota: felújítást igényel
Szobák száma: 10
Építés éve: 2000
Szintek száma: -

Részletes leírás

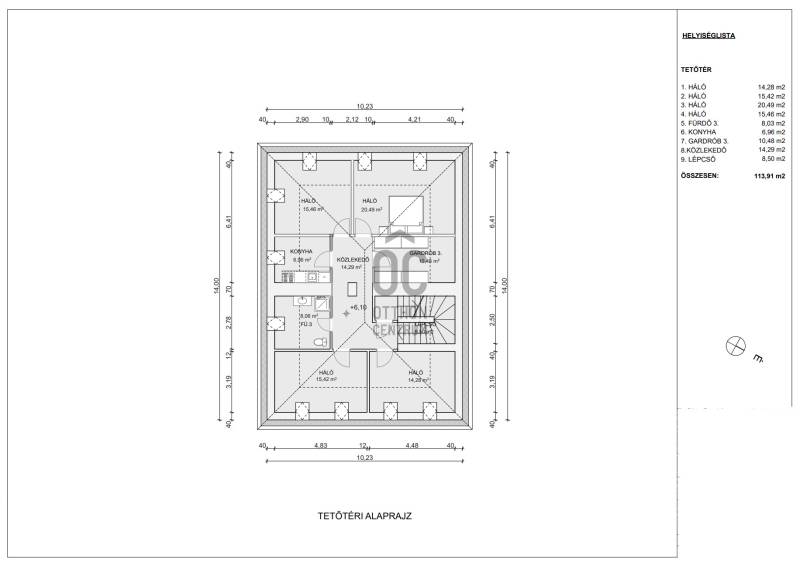
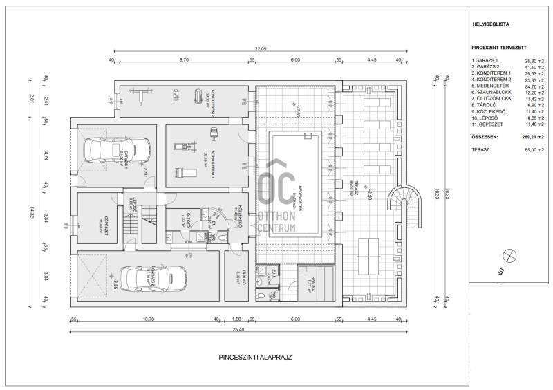
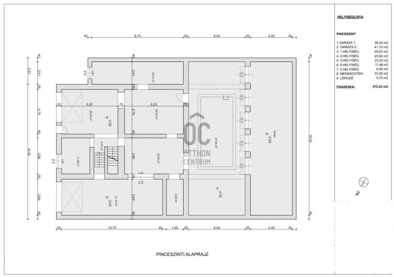
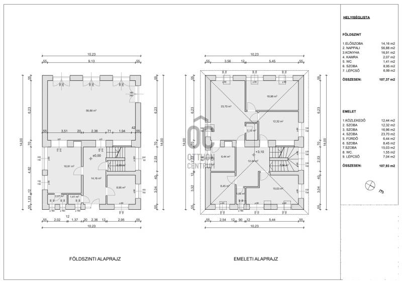
Budapest II. kerületének egyik legkedveltebb, zöldövezeti részén, Adyligetben kínálunk megvételre egy különleges adottságokkal rendelkező, nagyméretű családi házat.- Telek mérete: 800 m²- Nettó alapterület: 546 m²- Jelenlegi kialakítás: 10 szoba, 3 fürdőszoba, hatalmas nappali és konyha- Garázs: 2 nagy méretű, zárt beálló- Medence: elkezdett építés- Közlekedés: buszmegálló az utcában⸻A ház teljes külső homlokzata már megújult, így az ingatlan modern, esztétikus külsőt kapott. A belső tereket teljesen visszabontották, így az új tulajdonos szinte a nulláról, saját elképzelései szerint fejezheti be a belső kialakítást – akár luxus családi rezidenciát, akár többgenerációs otthont is létrehozhat.A jelenlegi belső struktúra tágas és rugalmasan alakítható, a 10 szoba igény szerint újragondolható, a nappali mérete pedig egyedülálló térérzetet biztosít.A két garázsban kényelmesen elférnek a családi autók, a kertben pedig már elkezdték egy privát medence építését – az új tulajdonos befejezheti ezt, és egy valódi oázist varázsolhat a kertből.⸻Miért különleges ez az ingatlan?•Exkluzív lokáció a természet közelében, mégis kiváló közlekedéssel•Ritkán elérhető méret és kialakítási lehetőségek•Készen áll arra, hogy valaki a saját ízlése szerint formálja tökéletessé•Kiváló ár-érték arány ebben a kategóriában⸻Ha Ön egy tágas, jól megközelíthető, egyedi lehetőségeket rejtő ingatlant keres Budapest zöldövezetében, ne hagyja ki ezt a lehetőséget!- További információért, alaprajzért, vagy megtekintés egyeztetéséhez kérem, keressen bizalommal!

További adatok

Telekterület: 885 m2
Kert mérete: 885 m2
Erkély mérete: 110 m2
Felszereltség: -
Parkolás: -
Kilátás: -
Egyéb extrák:  
-

Hirdető adatai

Hirdető neve: Otthon Centrum
Kapcsolattartó: Radnai Orsolya
Hirdető telefonszáma: +36 70 388 5711
Honlap: -