Ház
Origó
HázOrigoval pont a központban

Tolna megye, Dombóvár


 

Ingatlan adatai

Irányár: 33 000 000 Ft
Típus: nyaraló
Kategória: eladó
Alapterület: 64 m2
Fűtés: egyéb
Állapota: -
Szobák száma: 3
Építés éve: 1975
Szintek száma: -

Részletes leírás

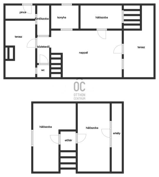
Dombóvár népszerű üdülőövezetében Gunarasfürdőn, 300nm-es telken eladóvá vált egy nettó 64nm-es, 2 szintes nyaraló.Az ingatlan a gyógyfürdőtől pár perc sétára található, csendes, barátságos utcában .A nyaraló első és hátsó terasza közel 10-10nm, az emeleti erkély 4,5nm-es.A földszinten konyha, nappali-étkező, hálószoba, fürdőszoba és külön Wc található,az emeleten pedig még két külön bejáratú szoba van, igy akár nagyobb család is kényelmesen elfér.A barátságos, tujákkal körülvett kert biztosítja a nyugodt kikapcsolódást, pihenést.Az udvaron a ház mellett 2 gépjármű tárolására van lehetőség. Jelenleg nyaralóként funkcionál, csak az alsó szint fűtése megoldott, de kis ráfordítással állandó lakhatásra is alkalmassá tehető.A közelben minden megtalálható: élelmiszerbolt, étterem, kertvendéglő, kávézó, a sportolni vágyóknak pedig a Gunarasfürdőt Dombóvár központjával összekötő 5km-es kerékpárút áll rendelkezésére. Ajánlom családi nyaralónak, vagy akár befektetési célra is, mivel a fürdő közelsége miatt könnyen kiadható.Amennyiben hirdetésem felkeltette figyelmét, szeretne többet megtudni az ingatlanról, kérem hívjon!

További adatok

Telekterület: 300 m2
Kert mérete: 300 m2
Erkély mérete: 23 m2
Felszereltség: -
Parkolás: -
Kilátás: -
Egyéb extrák:  
-

Hirdető adatai

Hirdető neve: Otthon Centrum
Kapcsolattartó: Milhoffer Lászlóné - Klári
Hirdető telefonszáma: +36 70 716 8881
Honlap: -