Ház
Origó
HázOrigoval pont a központban

Pest megye, Szentendre


Szentendre 

Ingatlan adatai

Irányár: 239 900 000 Ft
Típus: ház
Kategória: eladó
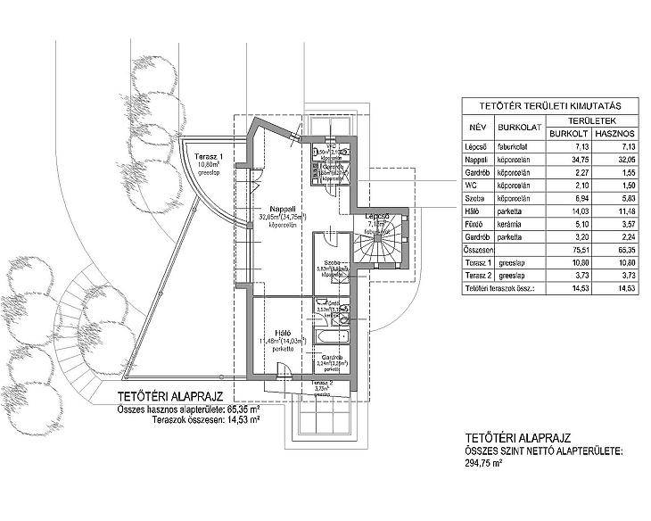
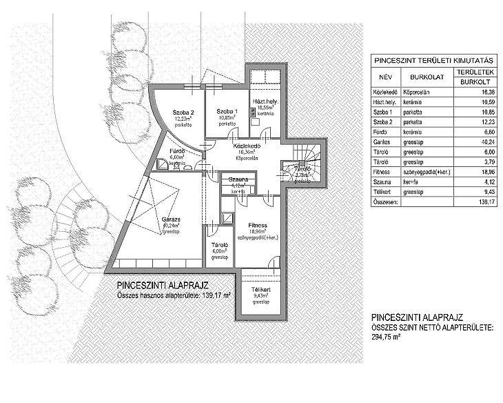
Alapterület: 294 m2
Fűtés: -
Állapota: -
Szobák száma: 5
Építés éve: 1997
Szintek száma: -

Részletes leírás

SZENTENDRÉN ELADÓ EGY ÖRÖKPANORÁMÁS ÖNÁLLÓ CSALÁDI HÁZ, PISMÁNYBAN!KÖRNYÉKAz ingatlan Szentendre egyik legkedveltebb, csendes részén, Pismányban található, zöldövezeti környezetben. A település nyugalma és a környék panorámája ideális választás családok számára. A legközelebbi buszmegálló mindössze kb. 4 perc sétára van, ahonnan gyorsan elérhető Szentendre belvárosa, a H5-ös HÉV, valamint Budapest. A környéken számos szolgáltatás megtalálható, miközben a természet közelsége igazi otthonélményt biztosít.A HÁZ JELLEMZŐI- Alapterület: 294 nm.- Telek: 1079 nm.- Az ház 1997-ben épült, 30 cm-es Porotherm téglából, a pinceszint zsalukővel lett megépítve. A homlokzat 6 cm vastag Dryvit szigetelést kapott.- A tető 2018-ban új Bramac betoncserép héjazatot kapott, 25 cm vastag kőzetgyapot szigetelés van a tetőben. A teljes bádogozás is kicserélésre került.- A homlokzati nyílászárók KÖMMERLING műanyag profil rendszerű, 2 réteg üvegezésű kivitelben készült ablakok és ajtók.- A fűtésről Vaillant gázkazán gondoskodik, a hőleadók radiátorok + padlófűtés a hidegburkolatok alatt, a nappaliban helyezkedik el egy épített, hangulatos kandalló is, ezenkívül a házba beszerelésre került 4 db hűtő-fűtő klíma, melyekből 1 db inverteres rendszerű.- Elektromos hálózat: 3x16 Amper, a vezetékek rézből vannak.- A hálószobák burkolatai eredeti fából készültek.- A földszinten és a tetőtérben összesen 4 beépített gardrób áll rendelkezésre.- Konyha teljesen gépesített, modern berendezéssel.- Összközműves ingatlan, teljesen csatornázott.- Öntözőrendszer is kialakításra került a kert gondozásához. az északi oldalon található egy telken belüli, felszíni kocsibeálló ami alkalmas még kerékpárok, utánfutó stb. tárolására is, a felszíni beálló alatt egy ciszterna található, amit igény szerint rá lehet csatlakoztatni az esővíz gyűjtésére.- A parkolásról egy 2 beállásos garázs gondoskodik, melyből nyílik egy ajtóval zárható külön helyiség; hűtőládák, befőttek, zöldségek stb. tárolására.FINANSZÍROZÁS• Banki finanszírozással is megvásárolható, irodánk díjmentes tanácsadással áll rendelkezéséreVevőink részére a közvetítés díjtalan!A hirdetésben szereplő adatok tájékoztató jellegűek.

További adatok

Telekterület: 1 079 m2
Kert mérete: 1 079 m2
Erkély mérete: -
Felszereltség: -
Parkolás: -
Kilátás: panorámás
Egyéb extrák:  
-

Hirdető adatai

Hirdető neve: MPD Hungary Kft.
Kapcsolattartó: Prossima Casa Kft.
Hirdető telefonszáma: +36202625260
Honlap: -