Ház
Origó
HázOrigoval pont a központban

Vas megye, Kőszegszerdahely


 

Ingatlan adatai

Irányár: 225 000 Ft/hó
Típus: ház
Kategória: kiadó
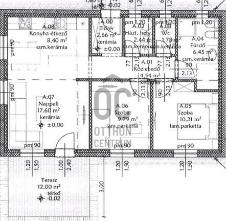
Alapterület: 70 m2
Fűtés: elektromos
Állapota: -
Szobák száma: 3
Építés éve: 2023
Szintek száma: -

Részletes leírás

Kőszegszerdahelyen, található ez a br.70 nm-es, 2 szobás, kitűnő állapotú ház, amely kiváló lehetőséget kínál a bérlők számára. Az ingatlan magában foglalja a beépített bútorokat és szekrényeket, motoros redőnyöket, valamint egy 10 nm-es teraszt, amelyről csodálatos kilátás nyílik a kertre. Az infrafilm padló fűtésnek köszönhetően a lakás rendkívül gazdaságos és kényelmes. Parkolás telken belül kialakított közös parkolóban megoldott. A környék rendkívül csendes és biztonságos. Az ingatlan közelében találhatóak azok a közlekedési lehetőségek, amelyekkel könnyedén elérhető az osztrák határ, Kőszeg 5 km-re, Szombathely 17 km-re található.Az ingatlan minimum egy évre bérelhető, 3 havi kaució szükséges.KIS állat egyedi megbeszélés alapján hozható.Bérleti díj: 225.000 Ft+ rezsi (víz, villany fogyasztás alapján, közös költség)

További adatok

Telekterület: 340 m2
Kert mérete: 340 m2
Erkély mérete: 10 m2
Felszereltség: -
Parkolás: -
Kilátás: -
Egyéb extrák:  
-

Hirdető adatai

Hirdető neve: Otthon Centrum
Kapcsolattartó: Tóth Éva
Hirdető telefonszáma: +36 70 412 5241
Honlap: -