Ház
Origó
HázOrigoval pont a központban

Budapest, VII.kerület


Rottenbiller utca 

Ingatlan adatai

Irányár: 75 000 000 Ft
Típus: lakás (tégla)
Kategória: eladó
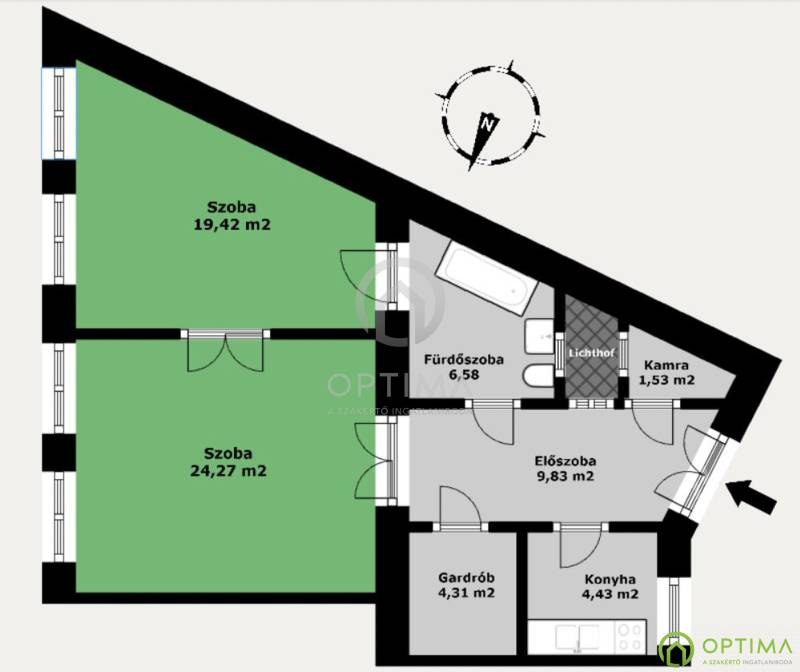
Alapterület: 70 m2
Fűtés: gáz (konvektor)
Állapota: felújítást igényel
Szobák száma: 2
Építés éve: -
Szintek száma: 1

Részletes leírás

JÓ ELOSZTÁS, NAGY LEHETŐSÉGVilágos, jól alakítható lakás kiváló adottságokkal, rendezett társasházban.Ideális választás saját otthonnak vagy értékálló befektetésnek is.Lakás rövid leírásaA VII. kerület egyik keresett, mégis élhető részén található 70 m²-es, felújítandó, nagyon jó elosztású, jelenleg 2 szobás, téglaépítésű lakás az I. emeleten. A lakás kifejezetten fényes, a terek praktikusak, jól újragondolhatók. Befektetési szempontból is kiváló: akár két külön lakás kialakítása is reális lehetőség.Főbb jellemzők• 70 m² alapterület• 2 szoba + gardrób• téglaépítésű társasház• I. emeleti elhelyezkedés• kamra és fürdőszoba lichthof kapcsolatos, kiváló szellőzéssel• 30.000 Ft/hó közös költség, amely jelentős felújítási alapot tartalmaz• a társasházban nemrég megújult a gázhálózat• tehermentes• azonnal költözhetőTársasházRendkívül szép, karbantartott, jó lakóközösséggel rendelkező épület, folyamatosan gondozott műszaki állapottal.Lokáció és környékA Rottenbiller utca a belvároshoz közel, jó infrastruktúrával rendelkező lakókörnyezet, ahol a mindennapi élethez szükséges szolgáltatások könnyen elérhetők. Az Állatorvostudományi Egyetem közelsége stabil bérleti keresletet biztosít, ugyanakkor a környék nem kifejezetten turisztikai jellegű.A jó tömegközlekedési kapcsolatoknak köszönhetően a lakás saját használatra és befektetésként is jól hasznosítható.Kinek ajánlom• befektetőknek, akik többfunkciós, jól kiadható ingatlant keresnek• saját részre vásárlóknak, akik egy jól alakítható, világos otthont szeretnének kialakítani• hosszú távon gondolkodóknak, értékálló lokációbanA megtekintés telefonos egyeztetését este és hétvégén is szívesen intézem.

További adatok

Telekterület: -
Kert mérete: -
Erkély mérete: -
Felszereltség: -
Parkolás: -
Kilátás: utcai
Egyéb extrák:  
-

Hirdető adatai

Hirdető neve: OPTIMA - A szakértő ingatlaniroda
Kapcsolattartó: Simon Csilla
Hirdető telefonszáma: +36705901663
Honlap: -