Ház
Origó
HázOrigoval pont a központban

Zala megye, Keszthely


 

Ingatlan adatai

Irányár: 208 494 000 Ft
Típus: ház
Kategória: eladó
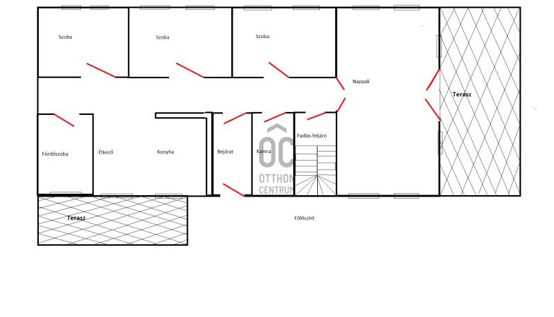
Alapterület: 250 m2
Fűtés: gáz (cirko)
Állapota: -
Szobák száma: 6
Építés éve: -
Szintek száma: -

Részletes leírás

Fedezze fel ezt a kivételes lehetőséget Keszthely szívében, ahol a városi élet vibrálása találkozik a csendes, nyugodt környezettel. Az ingatlan, amelyet most bemutatunk Önnek, egy múltat idéző polgári ház, mely Zala vármegye egyik legkeresettebb városrészében található. A 250 négyzetméteres alapterülettel rendelkező ingatlan ideális választás lehet családoknak, vagy akár befektetési célokra is, hiszen a környék folyamatosan fejlődik, és a kereslet növekszik. A ház elhelyezkedése rendkívül kedvező, hiszen a közeli belváros minden fontos szolgáltatást és lehetőséget kínál. Az ingatlanhoz tartozó 657 négyzetméteres telek bőséges helyet biztosít a szabadidős tevékenységekhez, a gyönyörű, 30 négyzetméteres terasz pedig tökéletes helyszín a pihenéshez vagy baráti összejövetelekhez. A házban összesen 6 szoba található, melyek tágasak és világosok. A fűtés gáz cirkó rendszerrel biztosított, amely gazdaságos és megbízható megoldás a téli hónapokban. Az ingatlan állapota jó, így azonnal költözhető, de lehetőség van a saját ízlésének megfelelő átalakításokra is. A szuterénben akár külön bejáratú lakás vagy üzlet is könnyen kialakítható. Balaton közelsége lehetővé teszi a vízparti élmények gyors elérését. Ez az impozáns ház becsempészi a múltat a jelenbe rengeteg lehetőséget kínálva! * Polgárii ház* gáz cirkó* külön nyíló szobák* 2 fürdőszoba* szauna* terasz* fedett kerti terasz* szuterén Bármilyen kérdése van ezzel az ingatlannal kapcsolatban, kérem, ne habozzon felkeresni minket bizalommal. Szívesen segítünk Önnek a legjobb döntés meghozatalában, hogy megtalálja álmai otthonát vagy befektetési lehetőségét!

További adatok

Telekterület: 657 m2
Kert mérete: 657 m2
Erkély mérete: 30 m2
Felszereltség: -
Parkolás: -
Kilátás: -
Egyéb extrák:  
-

Hirdető adatai

Hirdető neve: Otthon Centrum
Kapcsolattartó: Kassné Pap Andrea
Hirdető telefonszáma: +36 70 716 9246
Honlap: -