Ház
Origó
HázOrigoval pont a központban

Hajdú-Bihar megye, Bocskaikert


 

Ingatlan adatai

Irányár: 83 000 000 Ft
Típus: ház
Kategória: eladó
Alapterület: 116 m2
Fűtés: -
Állapota: új
Szobák száma: 4
Építés éve: 2026
Szintek száma: -

Részletes leírás

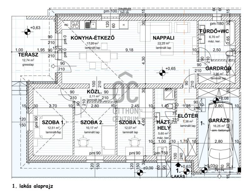
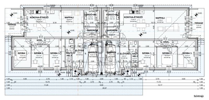
1. lakás Br.122 nm egy szinten utcafronti elhelyezkedéssel:- amerikaikonyhás nappali (40 nm) teraszkapcsolattal- 3 hálószoba (13,12,10 nm)- 2 fürdőszoba (kád és tusoló kialakítással)- gardrób (4 nm)- garázs (16 nm)- kertkapcsolat (270 nm).Projekt bemutatásaDebrecentől mindössze 10 km-re, Bocskaikert könnyen megközelíthető, családiházas övezetében épül egy kétlakásos ikerház projekt, várható 2027. I. negyedévi átadással.Az ingatlanok saját kertkapcsolattal rendelkeznek, nyugodt, kertvárosias környezetben, mégis kiváló infrastruktúrával.A modern műszaki tartalom a mai kor elvárásaihoz igazodik, energiatakarékos és hosszú távon gazdaságos fenntartást biztosít:Műszaki jellemzők:- POROTHERM 30 N+F téglafalazat- 15 cm homlokzati hőszigetelés- hőszivattyús fűtés padlófűtéssel- háromrétegű üvegezésű műanyag nyílászárók- 3,5 kW inverteres klíma- Tondach cserépfedés- térkövezett külső felületek- 9.000 Ft/m² választható hideg–meleg burkolatok- lakások között dupla falazat + 5 cm kőzetgyapot hangszigetelésA teljes műszaki dokumentáció érdeklődés esetén elérhető.Környezet és infrastruktúra:Bölcsőde, óvoda, iskola, gyógyszertár, posta, piac és bevásárlási lehetőségek a közelben. A vasút és buszközlekedés kiváló, Debrecen belvárosa kb. 15 perc alatt elérhető.Az E573-as elkerülő gyors megközelítést biztosít, a debreceni ipari park, a BMW és az akkumulátorgyár néhány perc alatt elérhető — ideális saját otthonnak és befektetésnek egyaránt.Kedvező ár-érték arány, rugalmas fizetési ütemezésVárható átadás: 2027. március3%-os Start Hitel és CSOK+ teljeskörű, díjmentes ügyintézéssel banki partnerünk segítségével — akár irodánkban, akár otthonában.További információkért és részletekért várom megkeresését!

További adatok

Telekterület: 1 000 m2
Kert mérete: 1 000 m2
Erkély mérete: 13 m2
Felszereltség: -
Parkolás: -
Kilátás: -
Egyéb extrák:  
-

Hirdető adatai

Hirdető neve: Otthon Centrum
Kapcsolattartó: Némethné Zsuzsa
Hirdető telefonszáma: +36 70 412 3861
Honlap: -