Ház
Origó
HázOrigoval pont a központban

Hajdú-Bihar megye, Hajdúsámson


 

Ingatlan adatai

Irányár: 60 000 000 Ft
Típus: ház
Kategória: eladó
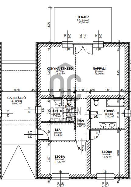
Alapterület: 75 m2
Fűtés: gáz (cirko)
Állapota: új
Szobák száma: 3
Építés éve: 2026
Szintek száma: -

Részletes leírás

Debrecen vonzáskörzetében, Hajdúsámson központjának közelében új építésűsorházak épülnek.Az épület nettó 75 nm alapterületű, nappali+ 2 hálószoba.A kiváló tervevezésnek köszönhetően a lakóegységek egy fedett gépkocsi beállóval érintkeznek,így a lakótereknek nincs közös fala. Minden ingatlanhoz önálló utcafronttal rendelkező,lekeríthető telekrész tartozik.Főbb jellemzők:- POROTHERM 30-as tégla falazat- 15 cm homlokzati hőszigetelés- cserép tetőhéjazat- 3 rétegű üvegezésű műanyag ablakok- gáz cirkó fűtés, padlófűtésen keresztül- 2 db hűtő-fűtő klíma- választható burkolatok és szaniterekA műszaki tartalom irodánkban rendelkezésre áll.Hitel, támogatott hitel igénybe vehető.

További adatok

Telekterület: 374 m2
Kert mérete: 374 m2
Erkély mérete: 15 m2
Felszereltség: -
Parkolás: -
Kilátás: -
Egyéb extrák:  
-

Hirdető adatai

Hirdető neve: Otthon Centrum
Kapcsolattartó: Koroknainé Erzsébet
Hirdető telefonszáma: +36 70 461 9356
Honlap: -