Ház
Origó
HázOrigoval pont a központban

Budapest, III.kerület


Békásmegyer 

Ingatlan adatai

Irányár: 61 900 000 Ft
Típus: lakás (panel)
Kategória: eladó
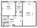
Alapterület: 51 m2
Fűtés: távfűtés
Állapota: -
Szobák száma: 2
Építés éve: -
Szintek száma: -

Részletes leírás

Békásmegyer Duna felőli oldalán ELADÓ egy 51 nm-es, 2 szobás, felújítandó lakás PANELPROGRAMOS házban!A lakás egy rendezett lépcsőházú, panelprogramon átesett épület 1. emeletén található. Keleti fekvésének köszönhetően a helyiségek világosak, kellemes atmoszférát biztosítanak a mindennapokhoz.A szobákban és az előszobában laminált parketta található, a vizes helyiségek járólappal burkoltak, a szobák falai tapétázottak.A panelprogram keretein belül műanyag nyílászárók kerültek beépítésre, valamint a vasradiátorok egyedi mérővel és szabályozóval lettek felszerelve.A biztonságról 12 ponton záródó bejárati ajtó gondoskodik.Az ingatlan elektromos hálózata alumínium vezetékekből áll.A lakás per- és tehermentes, 1/1 tulajdonban van, jogilag rendezett, és azonnal költözhető.Ideális választás lehet azok számára, akik egy világos, jó elrendezésű lakást keresnek egy szigetelt, rendezett házban.Környékről:Közelben minden olyan szolgáltatás megtalálható amire szüksége lehet a mindennapokban (kisebb élelmiszer boltok, piac, éttermek, gyógyszertárak). Gyerekes családoknak nagyon ideális hiszen játszóterek, Óvoda, Iskola, Egyetem van a közelben.Tömegközlekedés szempontjából is tökéletes hiszen pár perc sétára található számos buszmegálló, illetve a H5-ös hév.Ha pedig kikapcsolódásra vágyik pár perc sétára elérhető a Duna part, ahol számos lehetőség van kikapcsolódni, sétálni, szórakozni.PARKOLÁS A HÁZ ELŐTT ÉS KÖRNYÉKÉN INGYENES.FINANSZÍROZÁS:Banki finanszírozással is megvásárolható, melyben irodánk ingyenes tanácsadással áll rendelkezésükre! Az ingatlan Otthon Start hitellel is megvásárolható.VEVŐINK RÉSZÉRE A KÖZVETÍTÉS DÍJTALAN!A beépített bútorzat a vételár részét képezi.A hirdetésben szereplő adatok tájékoztató jellegűek.

További adatok

Telekterület: -
Kert mérete: -
Erkély mérete: -
Felszereltség: -
Parkolás: -
Kilátás: utcai
Egyéb extrák:  
-

Hirdető adatai

Hirdető neve: MPD Hungary Kft.
Kapcsolattartó: Békási Lakások Kft.
Hirdető telefonszáma: +36205034414
Honlap: -