Ház
Origó
HázOrigoval pont a központban

Pest megye, Gödöllő


Gödöllő 

Ingatlan adatai

Irányár: 134 900 000 Ft
Típus: ház
Kategória: eladó
Alapterület: 150 m2
Fűtés: egyéb
Állapota: új
Szobák száma: 4
Építés éve: 2026
Szintek száma: -

Részletes leírás

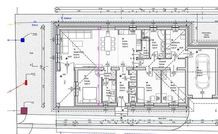
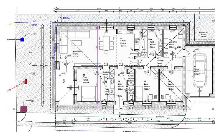
GÖDÖLLŐN, ALVÉG VÁROSRÉSZEN ELADÓ EGY ÚJ ÉPÍTÉSŰ, FÖLDSZINTES, NETTÓ 150 NM-ES IKERHÁZFÉL, 407 NM-ES TELEKKEL ÉS 1 ÁLLÁSOS GARÁZZSAL.Az ingatlan 2026 júniusában kerül kulcsrakész állapotba.Az épület társas házzá lesz nyilvánítva. Főbb jellemzők:Alapterület: nettó 150 m²Telekméret: 407 m²Építési éve: 2026 (új építésű)Falazat: 30 cm Porotherm téglaVálaszfalak: 10 cm PorothermSzigetelés: 15 cm grafitos dryvit a homlokzaton, aljzatban 10 cm szigetelésTető: Bramac cserép, tetőtérben 25 cm üveggyapot hőszigetelésFűtés: Energia hatékony hőszivattyús rendszerStabil, 100 cm mély beton alapParkolás: Saját 1 állásos garázsAz ár tartalmazza:Beltéri ajtók: 60.000 Ft/db,Beltéri hidegburkolatok: 6.500 Ft/ m²,Beltéri melegburkolatok: 6.000 Ft/ m²,Kültéri burkolatok: terasz 6,500 Ft/ m²,Szaniterek: Kád: 60.000 Ft/db, Kádtöltő: 25.000 Ft/db,Zuhany csaptelep: 25.000 Ft/db, Mosdó csaptelep: 15.000 Ft/db,Standardmosdó: 20.000 Ft/db,Wc + tartály: 35.000 Ft.Elrendezés:Amerikai konyhás nappali, 3 szoba, zuhanyzós fürdőszoba + mellékhelyiség, kádas fürdőszoba + mellékhelyiség, külön mellékhelyiség, mosókonyha, garázs, kamra, terasz. Környék: A környék jól ellátott helyi és agglomerációs tömegközlekedéssel, ami kényelmes eljutást biztosít mind Gödöllő belvárosába, mind Budapest irányába. A H8 HÉV/ Gödöllő felől közvetlen kapcsolatot biztosít Budapest Örs vezér tere metróállomással, ahol a 2-es metróhoz lehet átszállni. Gödöllő városán belül több helyi buszjárat közlekedik, amelyek összekötik a városrészeket, így Alvéget is a vasútállomással és a város központjával. A buszmegállók gyalogosan néhány perc alatt elérhetők a környéken.Közelben számos bevásárlási lehetőség, gyógyszertár, bölcsőde, óvoda, iskola, játszótér található.Finanszírozás:Az ingatlan banki finanszírozással is megvásárolható, melyben irodánk ingyenes tanácsadással áll rendelkezésükre!Irányár: 134,9 M Ft. VEVŐINK RÉSZÉRE A KÖZVETÍTÉS DÍJTALANA hirdetésben szereplő adatok tájékoztató jellegűek.

További adatok

Telekterület: 407 m2
Kert mérete: 407 m2
Erkély mérete: -
Felszereltség: -
Parkolás: -
Kilátás: kertre néző
Egyéb extrák:  
-

Hirdető adatai

Hirdető neve: MPD Hungary Kft.
Kapcsolattartó: Vestarion Kft.
Hirdető telefonszáma: +36203112124
Honlap: -