Ház
Origó
HázOrigoval pont a központban

Csongrád megye, Hódmezővásárhely


 

Ingatlan adatai

Irányár: 28 900 000 Ft
Típus: lakás (panel)
Kategória: eladó
Alapterület: 48 m2
Fűtés: távfűtés
Állapota: -
Szobák száma: 2
Építés éve: 1980
Szintek száma: -

Részletes leírás

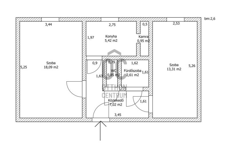
Ingatlan főbb jellemzői:>> elhelyezkedés: Hódmezővásárhely, Susán városrész>> 5 . emelet>> alapterület: 48 m²>> szobák száma: 2>> átlagos állapotú>> távfűtés egyedi mérővel>> műanyag nyílászárók (2 éve lettek cserélve)>> frissen festve, azonnal birtokba vehetőElhelyezkedés és környezet>> autóval és tömegközlekedéssel is könnyen elérhető>> a környék csendes, biztonságosKíváló választás első lakást vásárlóknak, fiatal pároknak, befektetőknek (kiadásra alkalmas)Az ingatlan jó alapot nyújt egyéni igények szerinti átalakításhoz.További kérdés esetén hívjon bizlommal.

További adatok

Telekterület: -
Kert mérete: -
Erkély mérete: -
Felszereltség: -
Parkolás: -
Kilátás: utcai
Egyéb extrák:  
-

Hirdető adatai

Hirdető neve: Otthon Centrum
Kapcsolattartó: Kajtár Lajos Dávid
Hirdető telefonszáma: +36 70 412 5011
Honlap: -