Részletes leírás
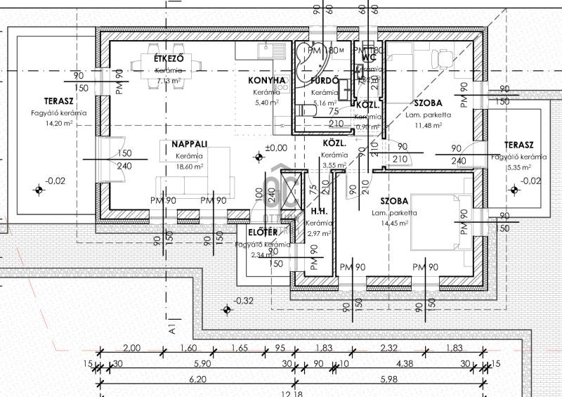
Képzeld el, hogy egy új otthon vár rád Siófok csendes és barátságos Sóstó városrészében.Ez a prémium kivitelezésű, modern ház tökéletes választás családosok számára, akik értékelik a világos tereket és a kényelmet. Az ingatlan alapterülete 71,26 nm, amely három tágas szobát és egy fürdőszobát foglal magában, így ideális helyet biztosít a családi élethez. A házhoz tartozik két terasz is, ahol élvezheted a nyári estéket és a napsütést. A kert lehetőséget ad a gyerekeknek a szabadban való játékra, míg te a friss levegőn pihenhetsz. Az ingatlan állapota kiváló, a hőszivattyús padlófűtés, a klímás hűtés és a dryvit szigetelés gondoskodik arról, hogy az otthonod mindig kellemes hőmérsékletű legyen, függetlenül az évszaktól. A modern dizájn és a világos belső terek egyedi hangulatot teremtenek, ami minden családtag számára vonzó lehet. A környék csendessége és biztonsága ideális környezetet biztosít a gyermekek számára. A közlekedési lehetőségek is kiválóak: könnyen megközelíthető a város központja, ahol minden szükséges szolgáltatás megtalálható, legyen szó boltokról, éttermekről vagy iskolákról. Az autóval közlekedők számára pedig a főbb utak közelsége biztosítja a gyors elérhetőséget. Ez az ingatlan nem csupán egy ház, hanem egy lehetőség, hogy egy új életet kezdj a családoddal egy csodás környezetben, de befektetésnek is ideális, ha szezonális ház kiadásban gondolkodik a jövőbeni tulajdonos.A Balaton, a legközelebbi szabadstrand kb. 15 perces gyalogútra van, két irányból is megközelíthető. Ezen a telken két egyforma ház épül, melyek önállóak, a telek pedig osztatlan közös tulajdon lesz ügyvédi használati megosztással. Mindkét házhoz egy kb. 430 nm-es telekrész, kert fog tartozni. Az egyik ház a Léda utca felől, a másik pedig a Luca utca felől, önállóan lesz megközelíthető.Műszaki leírásAlapozás: betonacél, C 20/25Falazás: főfalak - ytong 30 cm, válaszfalak - ytong 10 cmSzigetelés: 15 cm dryvit rendszer, a födém 20 cm üveggyapot szigetelés és gipszkartonFödém: könnyű szerkezetű, nem járhatóTetőszerkezet: fenyő fűrészáru, ácsolt építésűFedés: cserép (antracit)Nyílászárók: 3 rétegű, hőszigetelt műanyag ablakok és bejárat ajtó (fehérek) - redőny, szúnyogháló nincsBeltéri ajtók: több színből választható dekorfóliás ajtókBurkolatok: szobákban - laminált parketta, konyha-fürdőszoba-wc - csempe és padlólap (választhatóság 5000 Ft/nm értékben)Festés: glettelés-festés 3 rétegben (fehér)Fűtés, hűtés: hőszivattyús padlófűtés és 1 db klíma a nappalibanSzaniterek: 1 db kád (kérésre zuhany értékegyeztetéssel), 2 db wc, 1 db mosdó, 1 db kézmosó (MOFÉM csaptelepekkel)Villanyszerelés: 3 fázis, 3x20A, komplett villanyszerelés szerelvényekkel, gyengeáram kiépítés, H tarifaKörnyezet kialakítás: kerítések, elektromos kis és nagykapu, járdák, lépcsők, földfeltöltés, füvesítés, eső elvezetés a kertbe történikBútorozottság: nem kerül beépítésre semmilyen bútor vagy gépesítés (kivéve természtesen a hűtés-fűtés gépészetet)Ha kérdéseid vannak, vagy szeretnéd megtekinteni ezt a különleges otthont, ne habozz, keress bizalommal!Az energetikai tanúsítvány készítése folyamatban van, amint rendelkezésre áll, úgy azzal a hirdetés frissítésre kerül.(A képek között a hivatalos alaprajz alapján a mesterséges intelligencia segítségével tervezett látvány alaprajz is látható, tájékoztató jelleggel, valamint egyéb AI látványtervek - a hivatalos látványtervek mellett - szintén kedvcsináló jelleggel!)