Ház
Origó
HázOrigoval pont a központban

Somogy megye, Balatonföldvár


 

Ingatlan adatai

Irányár: 95 000 000 Ft
Típus: ház
Kategória: eladó
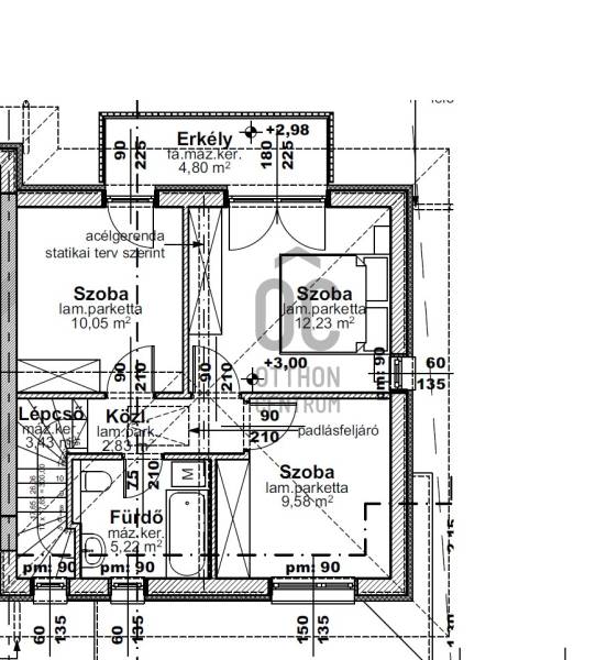
Alapterület: 86 m2
Fűtés: -
Állapota: új
Szobák száma: 4
Építés éve: 2026
Szintek száma: -

Részletes leírás

ÚJ ÉPÍTÉSŰ SORHÁZI LAKÁSOK BALATONFÖLDVÁRON a Kőröshegyi Völgyhíd alatti dinamikusan fejlődő lakóparkbanBalatonföldvár egyik legígéretesebb, újonnan kialakuló lakókörnyezetében épülő 4 lakásos sorházi lakásokat talált. Kivételes lokáció, modern építészet kialakuló új lakópark. A projekt ideális választás saját otthonnak, nyaralónak, értékálló befektetésnek.A PROJEKT FŐBB JELLEMZŐI:-4 lakásos, kis volumenű sorház-modern, letisztult megjelenés-privát terasz és kertkapcsolat-családbarát, nyugodt környezet-könnyű megközelíthetőség (M7, Balaton-part néhány perc)A lokáció presztízsét az ikonikus völgyhíd közelsége és a Balaton-parti infrastruktúra biztosítja.FINANSZÍROZÁSI LEHETŐSÉGA lakások akár Otthon Start Program hitellel is megvásárolhatók, így ideális lehetőség első lakásvásárlóknak vagy tudatos befektetőknek is.MIÉRT JÓ DÖNTÉS?-Folyamatosan fejlődő környezet-Értéknövekedési potenciál-Kiváló kiadhatóság szezonálisan és hosszú távon is#Balatonföldvár #BalatonÉletérzés #PanorámaOtthon #VölgyhídLátvány #BalatoniOtthon #ÚjÉpítésű#ModernOtthon #Kertkapcsolat #TeraszÉlet #BalatonPart #OtthonAholJóLenni #ReggeliKávéATeraszon #NapfényesOtthon #BalatoniMindennapok #NyugalomÉsStílus #LassabbRitmus #Értékálló #IngatlanBefektetés #LimitáltProjekt #Értéknövekedés #BiztosDöntés#OtthonStartProgram #BalatoniIngatlan #PrémiumLokációProjekt bemutatásaÚJ ÉPÍTÉSŰ SORHÁZI LAKÁSOK BALATONFÖLDVÁRON a Kőröshegyi Völgyhíd alatti dinamikusan fejlődő lakóparkbanBalatonföldvár egyik legígéretesebb, újonnan kialakuló lakókörnyezetében épülő 4 lakásos sorházi lakásokat talált. Kivételes lokáció, modern építészet kialakuló új lakópark. A projekt ideális választás saját otthonnak, nyaralónak, értékálló befektetésnek.A PROJEKT FŐBB JELLEMZŐI:-4 lakásos, kis volumenű sorház-modern, letisztult megjelenés-privát terasz és kertkapcsolat-családbarát, nyugodt környezet-könnyű megközelíthetőség (M7, Balaton-part néhány perc)A lokáció presztízsét az ikonikus völgyhíd közelsége és a Balaton-parti infrastruktúra biztosítja.FINANSZÍROZÁSI LEHETŐSÉGA lakások akár Otthon Start Program hitellel is megvásárolhatók, így ideális lehetőség első lakásvásárlóknak vagy tudatos befektetőknek is.MIÉRT JÓ DÖNTÉS?-Folyamatosan fejlődő környezet-Értéknövekedési potenciál-Kiváló kiadhatóság szezonálisan és hosszú távon is#Balatonföldvár #BalatonÉletérzés #PanorámaOtthon #VölgyhídLátvány #BalatoniOtthon #ÚjÉpítésű#ModernOtthon #Kertkapcsolat #TeraszÉlet #BalatonPart #OtthonAholJóLenni #ReggeliKávéATeraszon #NapfényesOtthon #BalatoniMindennapok #NyugalomÉsStílus #LassabbRitmus #Értékálló #IngatlanBefektetés #LimitáltProjekt #Értéknövekedés #BiztosDöntés#OtthonStartProgram #BalatoniIngatlan #PrémiumLokáció

További adatok

Telekterület: 300 m2
Kert mérete: 300 m2
Erkély mérete: 18 m2
Felszereltség: -
Parkolás: -
Kilátás: -
Egyéb extrák:  
-

Hirdető adatai

Hirdető neve: Otthon Centrum
Kapcsolattartó: Dienes László
Hirdető telefonszáma: +36 70 388 5086
Honlap: -