Ház
Origó
HázOrigoval pont a központban

Hajdú-Bihar megye, Debrecen


 

Ingatlan adatai

Irányár: 150 000 000 Ft
Típus: ház
Kategória: eladó
Alapterület: 165 m2
Fűtés: -
Állapota: új
Szobák száma: 6
Építés éve: 2025
Szintek száma: -

Részletes leírás

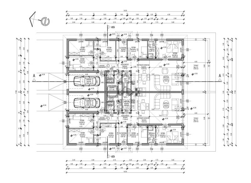
Debrecen -Józsa térségben eladó egy újépítésű, egymás melleti garázskapcsolatos, 165 nm-es, 5 szoba + nappali-konyha-étkezős, 3 fürdőszobás, földszintes, napelemes, 35 nm- es terasszal, 23 nm-es garázzsal rendelkező, azonnal költözhető ikerház!Az épület thermoblokkból készült, 15 cm-es homlokzati szigeteléssel, hőszivattyúval, padlófűtéssel, mennyezethűtéssel, központi szellőztetéssel, 380V ,5.2 napelem, akupakkal, H tarifával.A 6,5m- es belmagasságú, ledes médiafallal ellátott amerikai -nappali-étkező konyha igazi kuriózum.A 23 nm-es garázskapcsolattal rendelkező ingatlanhoz a további 35nm - es nappali kapcsolatos teraszon kívül egy 700nm-es egybefüggő kertkapcsolat áll rendelkezésre, további 5-6 férőhelyes nyitott gépkocsi beállási lehetőséggel. BMW gyár, autópálya felhajtó pár perc távolságra, Józsa központ szintén 5 perc elérhetőségre.Irodánk teljeskörű ügyintézéssel, kiváló ügyvédi háttérrel, díjtalan és bankfüggetlen hitelszakértővel várja ügyfelei jelentkezését!További kérdéssel, megtekintéssel kapcsolatban várom hívását a hét bármely napján!

További adatok

Telekterület: 900 m2
Kert mérete: 900 m2
Erkély mérete: 35 m2
Felszereltség: -
Parkolás: -
Kilátás: -
Egyéb extrák:  
-

Hirdető adatai

Hirdető neve: Otthon Centrum
Kapcsolattartó: Deák Andrea
Hirdető telefonszáma: +36 70 388 5986
Honlap: -