Ház
Origó
HázOrigoval pont a központban

Pest megye, Fót


 

Ingatlan adatai

Irányár: 209 900 000 Ft
Típus: ház
Kategória: eladó
Alapterület: 150 m2
Fűtés: -
Állapota: új
Szobák száma: 5
Építés éve: 2026
Szintek száma: -

Részletes leírás

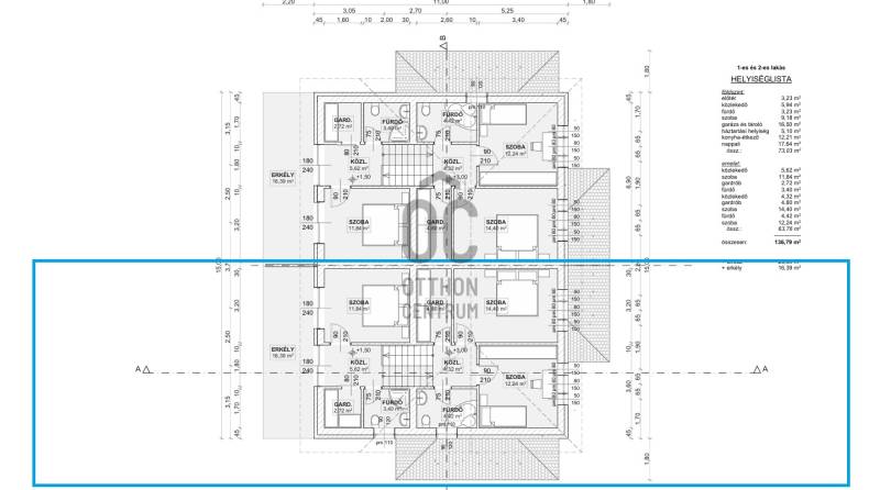
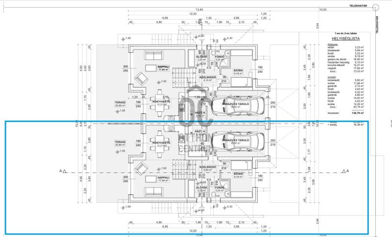
Pest-megye egyik legkeresettebb, zárt lakóparkjában kínálunk eladásra kétszintes ikerházfelet közvetlenül az építtetőtől.Az ingatlan modern műszaki tartalommal, átgondolt alaprajzzal és nyugodt, prémium környezetben készül.Az ingatlan nettó lakóterülete 136,79 m², amelyhez 25,89 m² terasz és 16,39 m² erkély tartozik.A lakás elosztása ideális családi használatra: a földszinten előtér, közlekedő, fürdőszoba, külön szoba, tágas nappali–konyha–étkező, háztartási helyiség, valamint garázs és tároló kap helyet. Az emeleten közlekedők, három külön nyíló szoba, két fürdőszoba és gardróbok találhatók. Az ingatlan összesen 4 szobával + nappalival rendelkezik.Műszaki tartalom és felszereltség:• hőszivattyús padlófűtés• mennyezethűtés• H tarifás villanyóra• Gree hűtő-fűtő klímák• telefonról és távirányítóval vezérelhető elektromos redőnyök• elektromos kapu és garázskapu• riasztó- és kamerarendszer előkészítés• kaputelefonA lakópark zárt, portaszolgálattal ellátott, térkövezett utcákkal rendelkező, átmenő forgalomtól mentes, exkluzív lakókörnyezet.A környéken park és játszótér is van, ahol évente több alkalommal szerveznek programokat, így a gyerekek és a felnőttek is aktív közösségi életet élhetnek.A rendezett beépítés, a nyugalom és a biztonság ideális választássá teszi mind családok, mind hosszú távú befektetők számára.A kulcsrakész átadás várható időpontja 2026. december.A vásárláshoz bankfüggetlen hitelügyintézést és teljes körű pénzügyi tanácsadást biztosítunk.

További adatok

Telekterület: 464 m2
Kert mérete: 464 m2
Erkély mérete: 42 m2
Felszereltség: -
Parkolás: -
Kilátás: -
Egyéb extrák:  
-

Hirdető adatai

Hirdető neve: Otthon Centrum
Kapcsolattartó: Gál Jánosné
Hirdető telefonszáma: +36 70 465 7056
Honlap: -