Ház
Origó
HázOrigoval pont a központban

Budapest, XXII.kerület


 

Ingatlan adatai

Irányár: 168 000 000 Ft
Típus: ház
Kategória: eladó
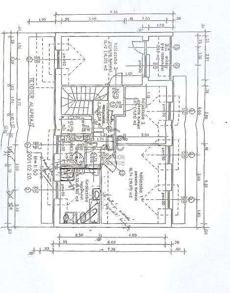
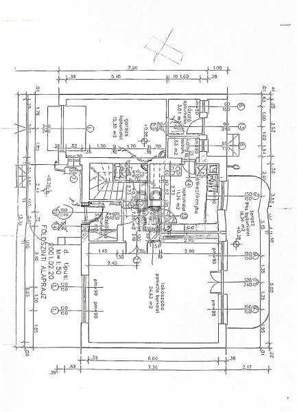
Alapterület: 142 m2
Fűtés: gáz (cirko)
Állapota: -
Szobák száma: 4
Építés éve: 2003
Szintek száma: -

Részletes leírás

Budapest 22. kerületében, Budafok csendes, barátságos környezetében található 2003 ban épült sorházat kínálunk eladásra. 375 négyzetméteres telekkel rendelkezik, így bőséges teret biztosít a családi élethez. A házban négy tágas szoba található, amelyek közül a nappali különösen világos és hívogató, ideális helyszín a közös családi programokhoz. A házhoz tartozik egy 16,4 négyzetméteres terasz, ahol a nyári estéket kellemesen töltheti el a család. Az ingatlan tehermentes, így azonnal birtokba vehető. Fűtés gáz (cirko) rendszerrel működik. A kert rendezett és világos, automata öntözőrendszerrel felszerelt, amely megkönnyíti a növények gondozását, így Önnek nem kell sok időt töltenie a kertészkedéssel. A környék rendkívül kedvező adottságokkal rendelkezik, hiszen a csendes utcák és a barátságos szomszédság ideális környezetet biztosítanak a gyermekek számára. Az ingatlan közelében található boltok, iskolák és óvodák, így a mindennapi élet kényelmesen megoldható. A közlekedés szempontjából is előnyös a helyszín, hiszen a tömegközlekedési lehetőségek könnyen elérhetők, így a főváros többi része is gyorsan megközelíthető, legyen szó autóval vagy tömegközlekedéssel való utazásról. Ez a ház nemcsak egy ingatlan, hanem egy otthon, ahol a családja boldogan élhet. Ha Ön is szeretne egy olyan helyet, ahol a gyermekeinek biztonságos és nyugodt környezetet biztosíthat, akkor ez a lehetőség Önnek szól.

További adatok

Telekterület: 376 m2
Kert mérete: 376 m2
Erkély mérete: 20 m2
Felszereltség: -
Parkolás: -
Kilátás: -
Egyéb extrák:  
-

Hirdető adatai

Hirdető neve: Otthon Centrum
Kapcsolattartó: Zsombok Előd
Hirdető telefonszáma: +36 70 454 1395
Honlap: -