Ház
Origó
HázOrigoval pont a központban

Budapest, V.kerület


 

Ingatlan adatai

Irányár: 130 000 000 Ft
Típus: lakás (tégla)
Kategória: eladó
Alapterület: 58 m2
Fűtés: gáz (cirko)
Állapota: -
Szobák száma: 2
Építés éve: 1911
Szintek száma: -

Részletes leírás

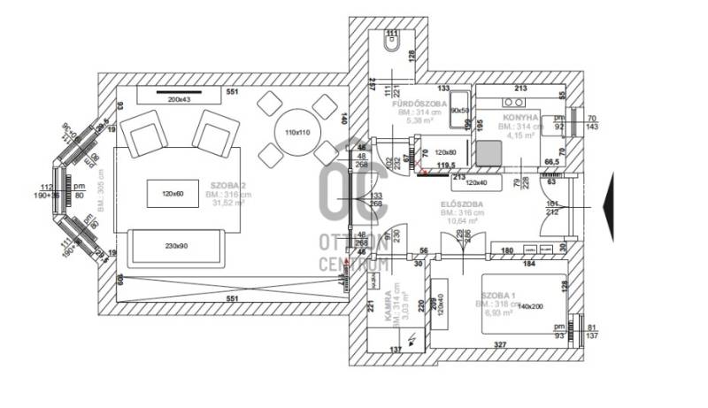
Október 6. utca az egyik legértékesebb része Lipótvárosnak. A kerület 10 legdrágább utcája között van.*Nevét az aradi vértanúk emlékére kapta.5 perc sétára a Parlament, Szabadság tér, Szent István Bazilika, Operaház, Dunakorzó és még sorolhatnám.Éttermek, kávézók széles választéka elérhető.Itt épült 1911-ben Román Miklós és Román Ernő tervei szerint ez a klasszikus, lipótvárosi polgári épület.Az 58 m2 - es lakás a liftes ház 5. emeletén van.Nappalija az Október 6. utcára néz, egyik oldalán padlótól-plafonig végig futó gardróbbal.Hálója csendes, befelé néző ablakkal.Az ablakos, gépesített, külön - konyha nagy értéke a belvárosi lakásoknak. Ma már ritkábban találkozunk vele. ( általában a nappaliba építik ) Fürdője modern, zuhanyzóval ellátott.A külön háztartási helyiségben található a kazán, mosógép.A lakás felújított, klimatizált, egyedi gáz fűtéssel. Ajánlom otthonnak, ingatlanbefektetésnek egyaránt.* KSH ingatlan adattárAz energetikai tanúsítvány készítése folyamatban van, amint rendelkezésre áll, úgy azzal a hirdetés frissítésre kerül.

További adatok

Telekterület: -
Kert mérete: -
Erkély mérete: -
Felszereltség: -
Parkolás: -
Kilátás: utcai
Egyéb extrák:  
-

Hirdető adatai

Hirdető neve: Otthon Centrum
Kapcsolattartó: Lipiczky András
Hirdető telefonszáma: +36 70 716 9196
Honlap: -