Ház
Origó
HázOrigoval pont a központban

Pest megye, Sződ


Sződ 

Ingatlan adatai

Irányár: 116 900 000 Ft
Típus: ház
Kategória: eladó
Alapterület: 103 m2
Fűtés: egyéb
Állapota: új
Szobák száma: 4+1
Építés éve: 2025
Szintek száma: -

Részletes leírás

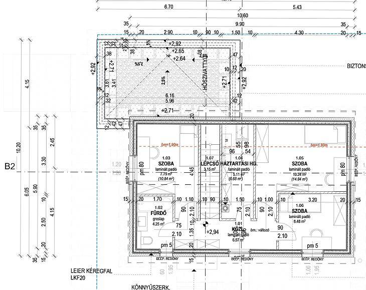
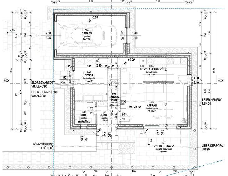
Sződ nyugodt, csendes részén épülő új családi házas övezetben modern, 2 szintes, amerikai konyhás, 4 szobás otthonok várják új tulajdonosaikat.A vásárláshoz CSOK Plusz, Falusi CSOK, otthonfelújítási támogatás, valamint kedvezményes, 3%-os hitel is igényelhető.Az ingatlan 2026-ben épült vasbeton szerkezettel.Elosztása:Földszint: Amerikai Konyhás nappali, hálószoba, fürdőszoba.Emelet: 2 db hálószoba, félszoba, fürdőszoba és háztartási helyiségAz energiahatékony kialakítást 20 cm-es hőszigetelés, háromrétegű nyílászárók és redőnyök biztosítják.A fűtésről 6 kW-os hőszivattyús rendszer gondoskodik, padlófűtéssel a ház teljes területén.A 800 m²-es telek tágas lehetőséget kínál kert és kültéri pihenőhely kialakítására.A családi házas övezet fejlesztési terve játszótér kialakítását is tartalmazza, valamint biztosított az ingatlanok aszfaltozott úton történő megközelítése minden tulajdonos számára.Sződ fejlesztés alatt lévő területén, újonnan kialakított építési telkeken több mérettel és elosztással rendelkező ház épül, minőségi elismert kivitelező álltal. Van lehetőség szinte kész állapotban lévő ház megvásárlására (gyorsabban költözhető), félkész állapotban (szaniterek, fal színek, belső nyílászárók stb. Választására), vagy akár a jövőben épült házak lefoglalásához (a tervezéstől kezdve minden módosítható).További kérdéseivel, illetve megtekintési szándékával kérem keresse irodánkat.A hirdetésben szereplő adatok tájékoztató jellegűek.Az ingatlan hitelre is megvásárolható. Bankfüggetlen tanácsadóink, az ország összes pénzintézete közül gyorsan és gördülékenyen találja meg az Önnek legmegfelelőbb konstrukciót, egyedi kedvezményekkel. A hitel közvetítés díjmentes

További adatok

Telekterület: 800 m2
Kert mérete: 800 m2
Erkély mérete: -
Felszereltség: -
Parkolás: -
Kilátás: utcai
Egyéb extrák:  
-

Hirdető adatai

Hirdető neve: MPD Hungary Kft.
Kapcsolattartó: Vede Casa Kft.
Hirdető telefonszáma: +36301096915
Honlap: -