Ház
Origó
HázOrigoval pont a központban

Pest megye, Göd


Göd 

Ingatlan adatai

Irányár: 139 900 000 Ft
Típus: ház
Kategória: eladó
Alapterület: 122 m2
Fűtés: egyéb
Állapota: új
Szobák száma: 4
Építés éve: 2026
Szintek száma: -

Részletes leírás

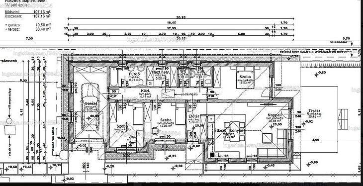
Göd központi részén eladó egy 122 nm-es, újépítésű családi ház, 450 nm-es saját kerttel.Az ingatlan 30-as téglából épül, 15 cm-es EPS szigeteléssel és háromrétegű műanyag nyílászárókkal, amelyek stabil és jól szigetelt otthont biztosítanak. A fűtést hőszivattyú látja el, a teljes ház padlófűtéses.Az elrendezés átgondolt: amerikai konyhás nappali, négy szoba, háztartási helyiség, egy zuhanyzós és egy kádas fürdőszoba szolgálja a kényelmet.A cserépfedés tartós megoldást ad, a tervezett garázs helyett pedig igény esetén egy plusz szoba is kialakítható.Az ingatlan jó elhelyezkedése és modern műszaki tartalma hosszú távon is kényelmes, jól használható otthont biztosít.várható átadás: 2026. októberJelen esetben foglalózás után, hideg meleg burkolatok, beltéri nyílászárók, szaniterek választhatóak melyek a meghirdetett ár részét képezik a belső műszaki tartalom szerintMegtekintés érdekében vagy felmerülő kérdés esetén keresse irodánkat.A hirdetésben szereplő adatok tájékoztató jellegűek.Az ingatlan hitelre is megvásárolható. Bankfüggetlen tanácsadóink, az ország összes pénzintézete közül gyorsan és gördülékenyen találja meg az Önnek legmegfelelőbb konstrukciót, egyedi kedvezményekkel. A hitel és az ingatlan közvetítés vevőink részére díjmentes.

További adatok

Telekterület: 450 m2
Kert mérete: 450 m2
Erkély mérete: -
Felszereltség: -
Parkolás: -
Kilátás: kertre néző
Egyéb extrák:  
-

Hirdető adatai

Hirdető neve: MPD Hungary Kft.
Kapcsolattartó: Vede Casa Kft.
Hirdető telefonszáma: +36301096915
Honlap: -