Ház
Origó
HázOrigoval pont a központban

Pest megye, Diósd


 

Ingatlan adatai

Irányár: 178 900 000 Ft
Típus: ház
Kategória: eladó
Alapterület: 125 m2
Fűtés: gáz (cirko)
Állapota: -
Szobák száma: 4
Építés éve: 2025
Szintek száma: -

Részletes leírás

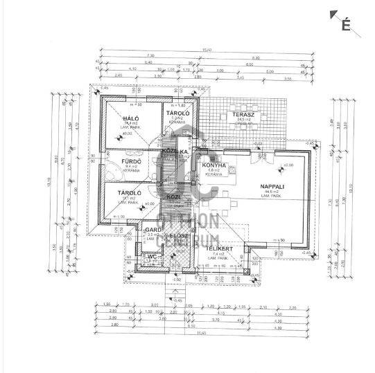
Egy kivételes lehetőséget kínálunk Önnek Diósdligeten , fiatalok, családosok számára ideális otthonra lelhetnek.Ez a modern, használt ház brutto 145 négyzetméteres alapterületével és 1032 négyzetméteres telkével tökéletes választás mindazok számára, akik a város zajától távol, de mégis központi elhelyezkedésben szeretnének élni.Az ingatlanban 2 szoba található plusz nappali+étkező+konyha, a nappali különösen világos és barátságos, köszönhetően a nagy ablakoknak és a minimalista kialakításnak.A nappali élettere így több mint 60 nm, ez 1 esetleg 2 kisebb szoba leválasztását is lehetővé teszi még, ezt a tulajdonos az árban vállalja kialakítani.A központi tér nagyon jó lehetőséget kínál a minden napi élethez és a családi összejövetelek és baráti találkozók felejthetetlen élményeket nyújtanak.A házhoz tartozó 24,5 négyzetméteres terasz ideális helyszín a pihenésre és a szabadban eltöltött időre.Az ingatlan állapota kiváló, 2025-ben készült el, a fűtés gáz cirkóval megoldott, míg a hűtésről klíma gondoskodik, így a nyári melegben is kellemes hőmérséklet várja a lakókat.Az ingatlanban gardrób szoba és mosókonyha is található, amelyek praktikus tárolási megoldásokat kínálnak.A modern LED hangulatvilágítás és a redőnyök pedig a kényelmet és az exkluzív megjelenést szolgálják.A környék ellátottsága kiváló, a közlekedési csomópont közelsége miatt a közlekedés kitűnő, így a főváros könnyedén elérhető.Diósd csendes, kertvárosi lakásai között található ez a gyöngyszem, a, ideális kertet biztosítva a gyermekek számára a szabadban való játékhoz.Az ingatlanban található egy 2 állásos garázs 36 nm és egy 15 nm nyári konyha is.A környék nyugodt, de a ház nem az utcafronton helyezkedik el, magánút vezet hozzá, ez is garantálja, hogy Ön nyugodtan élvezheti otthona kényelmét.Ez a felkapott környék nemcsak a családok, hanem a befektetők számára is vonzó lehetőségeket kínál.Az ingatlan elhelyezkedése miatt a jövőbeli értéknövekedés garantált, így érdemes mihamarabb lépni.Kérjük, ne habozzon, keressen bizalommal bármilyen kérdésével vagy időpont egyeztetéssel kapcsolatban.Az Ön álmai otthona már csak egy telefonhívásnyira van!

További adatok

Telekterület: 1 032 m2
Kert mérete: 1 032 m2
Erkély mérete: 25 m2
Felszereltség: -
Parkolás: -
Kilátás: -
Egyéb extrák:  
-

Hirdető adatai

Hirdető neve: Otthon Centrum
Kapcsolattartó: Lelkes Ágnes
Hirdető telefonszáma: +36 70 412 3716
Honlap: -