Ház
Origó
HázOrigoval pont a központban

Pest megye, Újszilvás


 

Ingatlan adatai

Irányár: 29 900 000 Ft
Típus: ház
Kategória: eladó
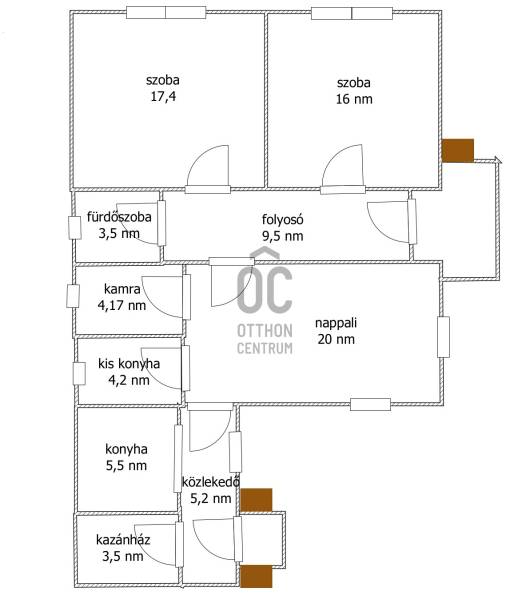
Alapterület: 89 m2
Fűtés: gáz (cirko)
Állapota: -
Szobák száma: 3
Építés éve: 1960
Szintek száma: -

Részletes leírás

Eladóvá vált Újszilváson, gyorsan fejlődő kis faluban, főút mellett, vályog falazatú, 2 szoba + nappalis családi ház.88,7 nm-s alapterületű, jó elosztású, 766 nm-s telken, gazdasági épületekkel.Összközműves, gáz és vegyes tüzelésű kazánról központi fűtéssel. A nappaliban még egy plusz gázkonvektor.Otthon Start hirelre, 2 gyermekes Csok Plusszra és Falusi Csokra is alkalmas!Ha szeretne gyorsan költözni, ez az ingatlan önre vár!Hívjon bizalommal és nézze meg velem!

További adatok

Telekterület: 766 m2
Kert mérete: 766 m2
Erkély mérete: -
Felszereltség: -
Parkolás: -
Kilátás: -
Egyéb extrák:  
-

Hirdető adatai

Hirdető neve: Otthon Centrum
Kapcsolattartó: Kozmané Zsiros Krisztina
Hirdető telefonszáma: +36 70 388 5436
Honlap: -