Ház
Origó
HázOrigoval pont a központban

Budapest, XV.kerület


 

Ingatlan adatai

Irányár: 289 000 000 Ft
Típus: ház
Kategória: eladó
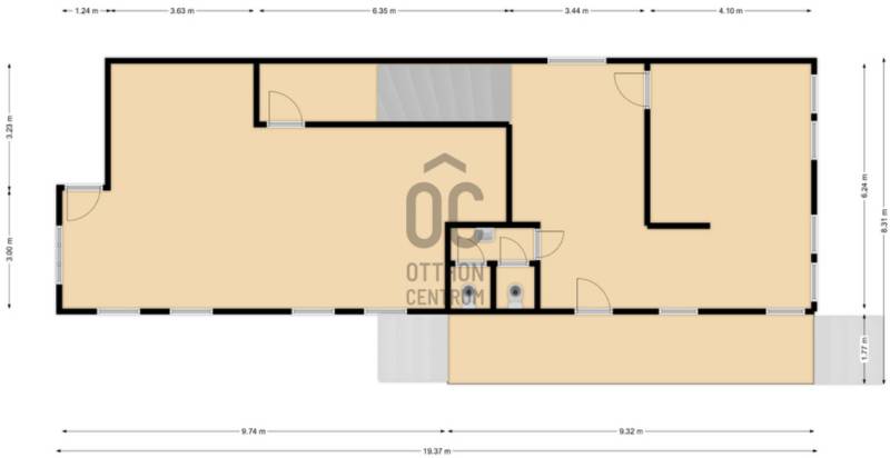
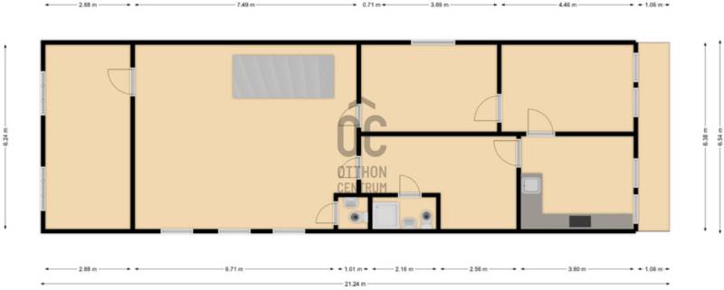
Alapterület: 400 m2
Fűtés: gáz (cirko)
Állapota: -
Szobák száma: 8
Építés éve: 1990
Szintek száma: -

Részletes leírás

Ez a különleges, EXKLUZÍV ingatlan tökéletes választás családosok számára, akik a csendes, mégis központi elhelyezkedésű Rákospalota ZÖLDÖVEZETÉBEN keresnek új otthont. A 400 nm-es használt ház 1500 nm-es telken helyezkedik el, ami bőséges teret biztosít a családi élethez és a szabadidős tevékenységekhez. Az ingatlanban összesen 8 szoba található, melyek közül a tágas nappali a családi összejövetelek ideális helyszíne lehet. Az egyedi tervezésű belső terek VILÁGOS és MODERN stílusban lettek kialakítva, így mindenki megtalálhatja a saját ízlésének megfelelő szegletet. A házban 2 fürdőszoba található, ami különösen előnyös lehet egy nagyobb család számára, hiszen így mindenki KÉNYELMESEN elfér.A 16 nm-es terasz és a 7 nm-es erkély tökéletes helyszínt biztosít a pihenéshez, ahol élvezhető a kertvárosi élet nyugalma és a panoráma. A fűtés gáz cirkóval, míg a hűtés KLÍMÁVAL megoldott, így az ingatlan egész évben kellemes hőmérsékletet biztosít. A környék BIZTONSÁGOS és CSENDES, ideális otthont nyújtva a családok számára. A közlekedési lehetőségek is KÍVÁLÓK: a közeli busz- és villamosmegállók gyors hozzáférést biztosítanak Budapest belvárosához, így a munkába járás vagy a város felfedezése gyerekjáték. Rákospalota számos bolt, iskola és egészségügyi intézmény közelében található, így minden szükséges szolgáltatás könnyen elérhető. Ez a TEHERMENTES INGATLAN nemcsak otthon, hanem befektetési lehetőség is, hiszen a KÖRNYÉK FOLYAMATOSAN FEJLŐDIK, így az ingatlan értéke is növekedhet. Ha egy modern, világos, és TÁGAS otthonra vágyik, ahol a család minden tagja megtalálja a helyét, ez az ingatlan tökéletes választás. Energetikai tanúsítvány készítése folyamatban van.Bármilyen kérdése van, vagy ha szeretné megtekinteni a házat,hívjon bizalommal a hét bármely napján.

További adatok

Telekterület: 1 500 m2
Kert mérete: 1 500 m2
Erkély mérete: 23 m2
Felszereltség: -
Parkolás: -
Kilátás: -
Egyéb extrák:  
-

Hirdető adatai

Hirdető neve: Otthon Centrum
Kapcsolattartó: Sebestyén Nikoletta
Hirdető telefonszáma: +36 70 388 5511
Honlap: -