Ház
Origó
HázOrigoval pont a központban

Hajdú-Bihar megye, Debrecen


 

Ingatlan adatai

Irányár: 169 000 000 Ft
Típus: ház
Kategória: eladó
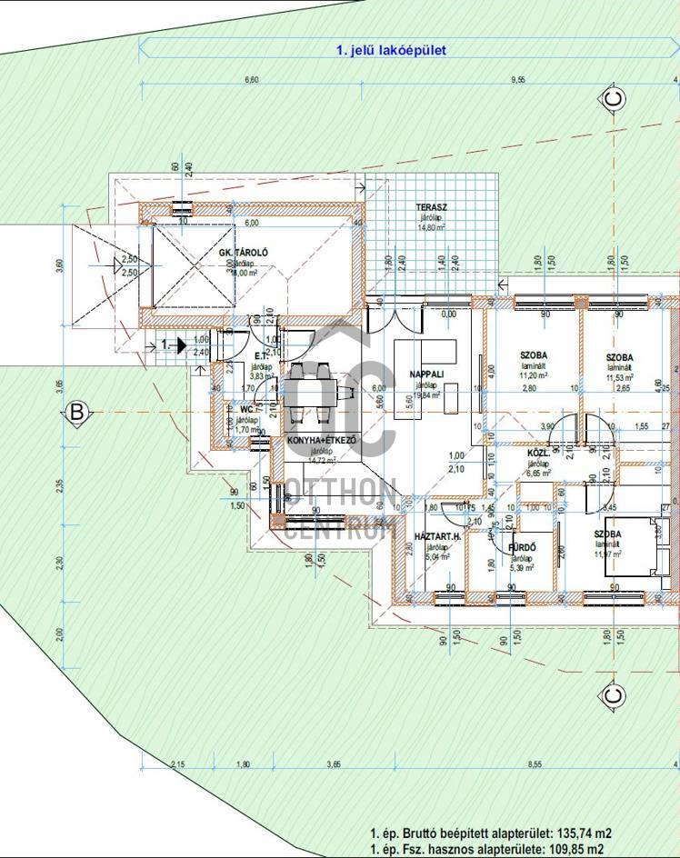
Alapterület: 110 m2
Fűtés: -
Állapota: új
Szobák száma: 4
Építés éve: 2026
Szintek száma: -

Részletes leírás

A HUSZTI LAKÓPARKBAN ÉLNI: EGY ÉLETÉRZÉSDebrecenben a Huszti lakóparkban új építésű, modern, földszintes ikerház épül,magas műszaki tartalommal.Az épület főbb jellemzői:- falazata 38 cm-es YTONG- válaszfalak 10 cm-es válaszfal YTONG-ból falazva- zárófödémen 30 cm-es URSA kőzetgyapot szigetelés- homlokzati nyílászárók háromrétegű üvegezéssel, hatkamrás műanyag szerkezettel,redőnnyel szerelve- riasztó, térfigyelő rendszer és kaputelefon előkészítés- burkolatválasztás műszaki leírás szerint- hőszivattyúról üzemelő padlófűtés- hőszivattyúról üzemelő mennyezethűtés- 1 MFt értékben beépített konyha- gk. bejáró és bejárat térkövel burkolva- Várható átadás 2026. 08. 31.Az ingatlan 30% befizetéssel leköthető.Hitel, támogatott hitel igénybe vehető!

További adatok

Telekterület: 568 m2
Kert mérete: 568 m2
Erkély mérete: 15 m2
Felszereltség: -
Parkolás: -
Kilátás: -
Egyéb extrák:  
-

Hirdető adatai

Hirdető neve: Otthon Centrum
Kapcsolattartó: Koroknainé Erzsébet
Hirdető telefonszáma: +36 70 461 9356
Honlap: -