Ház
Origó
HázOrigoval pont a központban

Budapest, III.kerület


 

Ingatlan adatai

Irányár: 299 000 000 Ft
Típus: lakás (tégla)
Kategória: eladó
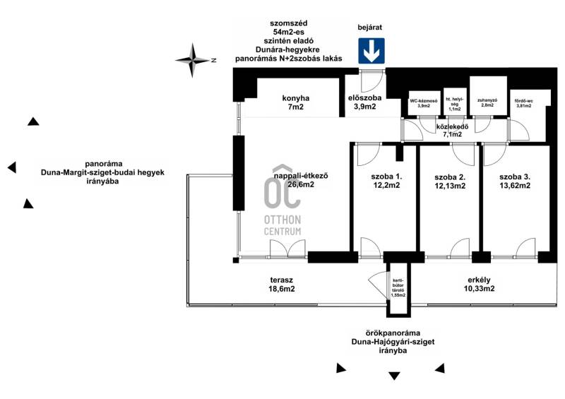
Alapterület: 92 m2
Fűtés: -
Állapota: -
Szobák száma: 4
Építés éve: 2024
Szintek száma: -

Részletes leírás

Ha a Waterfront Cityben keresi a megismételhetetlen ingatlant, itt megtalálta. Zárószinten, a 13. emeleten elhelyezkedő, 92 m2-es, nappali + 3 szobás, prémium otthon, amelyet még sosem laktak. Valóban újszerű, makulátlan állapot, az első lakója lehet. Minden helyiség közvetlen kijárattal kapcsolódik a panorámás teraszokhoz !AMIÉRT EZ TÉNYLEG EGYEDI A WATERFRONT CITYBEN– Zárószint, 13. emelet – maximális privát szféra és nyugalom– dunai panoráma – a víz látványa a mindennapok része– Teraszkapcsolat minden szobából – igazi penthouse életérzés– Még sosem lakták – az első tulajdonosként élvezheti a teljesen tiszta, új érzetet– Kivételes alaprajz – tágas, világos terek, tökéletes szeparáció– Nappali + 3 szoba – ideális családi méret– Két fürdőszoba, két WC, háztartási helyiség – kényelmes, praktikus mindennapokMŰSZAKI ÉS KOMFORT EXTRÁK– Gépesített, minimál konyha– Mennyezeti hűtés-fűtés– Elektromos alumínium redőnyök– SzúnyoghálókKÖRNYEZET ÉS ÉLETMÓD– Zöld, igényes lakóparki környezet – rendezett, modern, nyugodt atmoszféra– Jó közlekedés és infrastruktúra – a város kényelme, vízparti hangulattalPARKOLÁS+TÁROLÓ– 2 egymás melletti beálló közvetlenül a liftnél az épület alatti mélygarázsban– ár: 12 000 000 Ft / db – megvásárlása opcionális- a 4m2-es tároló melynek megvásárlása szintén opcionális 5.000.000,- forintHa dunai panorámát, zárószinti privát teraszélményt, és olyan luxus otthont keres, amelyet még sosem laktak, ezt látnia kell – hívjon most, és egyeztessünk időpontot!Amennyiben más elképzelése van a Wterfront City projektben, vagy érdekli a most megnyíló 6. ütem kínálata hívjon, egyeztessünk prezentációs időpontot!

További adatok

Telekterület: -
Kert mérete: -
Erkély mérete: 29 m2
Felszereltség: -
Parkolás: -
Kilátás: kertre néző
Egyéb extrák:  
-

Hirdető adatai

Hirdető neve: Otthon Centrum
Kapcsolattartó: Dán György
Hirdető telefonszáma: +36 70 469 3761
Honlap: -