Ház
Origó
HázOrigoval pont a központban

Budapest, XIX.kerület


 

Ingatlan adatai

Irányár: 319 990 000 Ft
Típus: iroda
Kategória: eladó
Alapterület: 511 m2
Fűtés: -
Állapota: -
Szobák száma: -
Építés éve: 2001
Szintek száma: -

Részletes leírás

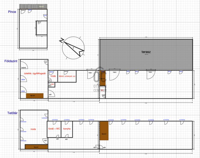
Kispest frekventált részén eladó egy sokoldalúan hasznosítható üzleti ingatlan, jó megközelíthetőséggel, utcafronti elhelyezkedéssel. A 545 m²-es telken egy 238 m² alapterületű, háromszintes (pince + földszint + tetőtér), jelenleg is üzletként és raktárként funkcionáló épület valamint egy 134m²-es terasz található.A födszinten egy utcafronti üzlettér, egy kisméretű irodai szoba, egy dolgozói öltöző zuhanyzókkal, illetve két nagy alapterületű műhely/raktár kapott helyet, több bejárattal és kapuval.A félnyeregtetős, 3,5 m csúcsmagasságú beépített tetőtéren egy nagyobb irodai helyiség, egy fürdőszoba, egy konyha, illetve üzemi funkciókra alkalmas tér található.Az épület alatt egy 2,5 m belmagasságú pince biztosít extra raktározási lehetőséget.A 134 m²-es terasz (fedett udvari rész) alkalmas pakolásra, tárolásra vagy kültéri munkavégzésre.Az aszfaltozott udvarnak köszönhetően az ingatlan alkalmas kisebb méretű teherautók fogadására és rakodására is.Ideális lehet:• kereskedelmi tevékenységre• bemutatóterem + műhely kombinációra• szerviznek, üzemnek• központi irodának raktárral• webáruházas logisztikai bázisnak• oktatóközpontnak• egészségügyi központnak• sportközpontnakJó lokáció, rugalmasan alakítható terek, komplex üzleti működésre optimalizált kialakítás.• Beépíthetőség: 60% maximális beépíthetőség.• Szintterületi mutató: Maximum 1,9 m²/m².• Maximális építménymagasság: 10,5 m.

További adatok

Telekterület: -
Kert mérete: -
Erkély mérete: -
Felszereltség: -
Parkolás: -
Kilátás: -
Egyéb extrák:  
-

Hirdető adatai

Hirdető neve: Otthon Centrum
Kapcsolattartó: Solymosi Márton
Hirdető telefonszáma: +36 70 465 7051
Honlap: -