Ház
Origó
HázOrigoval pont a központban

Zala megye, Hévíz


 

Ingatlan adatai

Irányár: 99 900 000 Ft
Típus: iroda
Kategória: eladó
Alapterület: 95 m2
Fűtés: -
Állapota: -
Szobák száma: -
Építés éve: -
Szintek száma: -

Részletes leírás

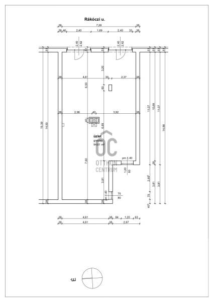
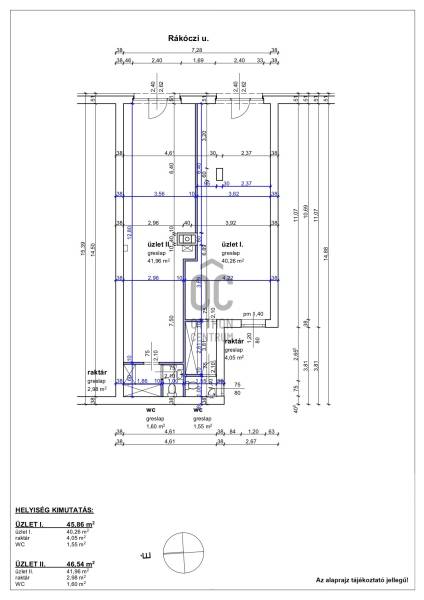
Kiemelt megbízás irodánk kínálatában!Hévíz legfrekventáltabb részén, a sétálóutcában kínálunk megvételre egy 94 m²-es, földszinti, tégla építésű üzlethelyiséget, amely a Tófürdő bejáratától mindössze pár perc sétára található, közvetlen utcai bejárattal rendelkezik.Az ingatlan jelenleg két különálló üzletre van osztva, azonban igény esetén könnyedén egybenyitható, sőt akár lakás céljára is átalakítható. Mindkét üzletrészhez minikonyha, valamint WC–zuhanyzó tartozik, így önállóan is jól hasznosíthatók.A fűtésről gáz-cirkó kazán gondoskodik, amely gazdaságos és megbízható megoldást nyújt.Az ingatlan kiváló befektetés, hiszen Hévíz ezen kiemelt részén magas bérleti díjak jellemzőek. A jelenlegi bérlők megtarthatók, így a befektetés akár azonnali hozamot biztosíthat, rövid megtérülési idővel.A közelben minden megtalálható: üzletek, vendéglátóhelyek, szolgáltatások, valamint a város leglátogatottabb turisztikai pontjai.Ne hagyja ki ezt a ritka lehetőséget Hévíz egyik legjobb lokációjában!Az adatok kizárólag a megbízóink által rendelkezésünkre bocsátott információkon alapulnak.Fentiekre tekintettel, az adatok teljességéért, helyességéért és aktualitásáért nem vállalunk felelősséget.Az árváltozás, adatmódosítás és közbeni értékesítés jogát fenntartjuk, mindezekért jogi felelősséget nem áll módunkban vállalni.

További adatok

Telekterület: -
Kert mérete: -
Erkély mérete: -
Felszereltség: -
Parkolás: -
Kilátás: -
Egyéb extrák:  
-

Hirdető adatai

Hirdető neve: Otthon Centrum
Kapcsolattartó: Poldauf Róbert
Hirdető telefonszáma: +36 70 469 3266
Honlap: -