Ház
Origó
HázOrigoval pont a központban

Budapest, XVIII.kerület


 

Ingatlan adatai

Irányár: 65 000 000 Ft
Típus: ház
Kategória: eladó
Alapterület: 51 m2
Fűtés: gáz (cirko)
Állapota: -
Szobák száma: 2
Építés éve: 1988
Szintek száma: -

Részletes leírás

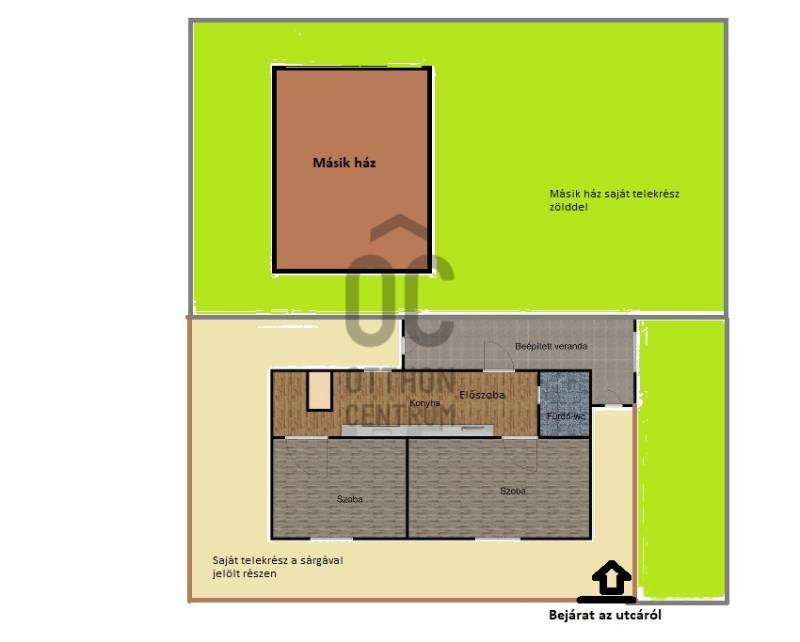
Megvételre kínálunk egy 51 nm-es kétszobás házat a XVIII.kerület egyik legkedveltebb részén. A két, kényelmes méretű szobán kívül egy konyha-étkező és egy fürdőszoba található.A ház egy osztatlan közös telken található, ügyvédi megosztással kerül eladásra. A másik ingatlan és annak telekrésze, fizikailag lesz elválasztva, nem lesz átjárás egymáson.- Megosztás után: Önálló, leválasztott, 90 nm-es kertész- A házhoz tartozik egy 18 nm-es, beépített terasz- Több felújításon is átesett az évek során- 2023-ban új parketták lettek letéve és új konyhabútor került beszerelésre- Műanyag nyílászárók- Betonfödémes, felfelé bővíthető igény szerint- 7 cm-es szigetelés került ráAkik igazi kertvárosi hangulatú helyen szeretnék élni mindennapjaikat, azoknak kiváló lehetőség ez az ingatlan.Csendes utca, viszont 4 perc sétatávra van az Üllői út, mely több tömegközlekedési opciót is kínál.Az energetikai tanúsítvány készítése folyamatban van, amint rendelkezésre áll, úgy azzal a hirdetés frissítésre kerülKeressen bizalommal!

További adatok

Telekterület: 90 m2
Kert mérete: 90 m2
Erkély mérete: 18 m2
Felszereltség: -
Parkolás: -
Kilátás: -
Egyéb extrák:  
-

Hirdető adatai

Hirdető neve: Otthon Centrum
Kapcsolattartó: Nagy Norbert
Hirdető telefonszáma: +36 70 461 9111
Honlap: -