Ház
Origó
HázOrigoval pont a központban

Budapest, XI.kerület


Andor utca 

Ingatlan adatai

Irányár: 64 900 000 Ft
Típus: lakás (tégla)
Kategória: eladó
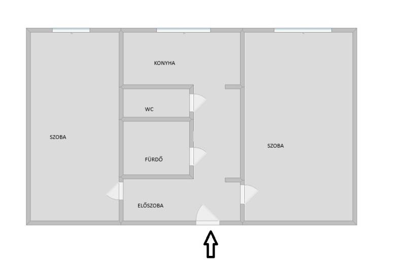
Alapterület: 50 m2
Fűtés: távfűtés
Állapota: -
Szobák száma: 2
Építés éve: -
Szintek száma: 4

Részletes leírás

Remek élettér, kiváló befektetés !XI. ker Andor utcában,, az Etele Pláza ill. a Kelenföldi pályaudvar közelében eladóvá vált egy rendkívül praktikus elrendezésű panellakás.Az ablakok cserélve lettek.A liftes ház karbantartott, a lakás a 4. emeleten van, szép világos, Déli fekvésű.Konyhabútor jó állapotú.Két oldalra nyílik két szinte egyforma, külön bejáratú szoba, mely remek életteret ad akár két diák szeparált életterének - így bérbeadáshoz is tökéletes- jó befektetés.Közelben minden, ami az élethez szükséges - üzletek-gyógyszertár-óvoda-iskola-remek tömegközlekedés.Jelenlegi bérlő is maradna, ha lehetséges.Rezsije kedvező: közös költség -fűtés- víz-villany mindösszesen 25-30 ezer ft között mozog általában.Tehermentes, szerződéstől számítva 30 nap múlva költözhető. Hitelre is megvásárolható.Várom hívását!Irodánk Ön számára biztosított kedvezményes szolgáltatásai:- bankfüggetlen hiteltanácsadás- ha ügyfelünk lesz az ingatlan vevője, ingyen elkészíttetjük az energetikai tanúsítványt Ügyvédi szolgáltatások féláron elérhetők!

További adatok

Telekterület: -
Kert mérete: -
Erkély mérete: -
Felszereltség: -
Parkolás: -
Kilátás: -
Egyéb extrák:  
-

Hirdető adatai

Hirdető neve: ArtsHome Ingatlaniroda
Kapcsolattartó: Murár Zsóka
Hirdető telefonszáma: 06-30-476-6997
Honlap: -