Ház
Origó
HázOrigoval pont a központban

Budapest, III.kerület


Testvérhegy - Farkastorok 

Ingatlan adatai

Irányár: 310 000 000 Ft
Típus: lakás (tégla)
Kategória: eladó
Alapterület: 185 m2
Fűtés: -
Állapota: -
Szobák száma: 5
Építés éve: -
Szintek száma: -

Részletes leírás

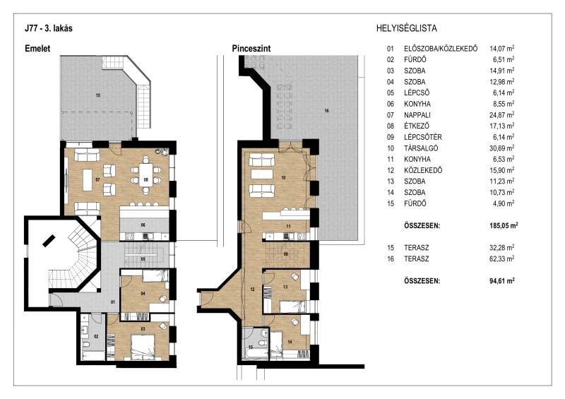
3.kerület, Testvérhegyen, kiváló közlekedésénél, mégis csendes helyen,igényes házak környezetében, 3 lakásos EXKLUZÍV 2023-ban épülttársasházban, 1. emeleti, nagyon tágas, csodálatos, elvehetetlenpanorámával rendelkező, belső 2 szintes, nappali + 4 szobás,duplakomfortos, 62 m2-es panorámás teraszos (jakuzzi elhelyezésérealkalmas), saját 300 m2-es kertrésszel (úszómedence kialakítható)rendelkező öröklakás, rengeteg extrával eladó.A társasház 2023-ban került átalakításra. Egy villaépületből bővítésselalakítottak ki, 1150 m2-en, 3 db exkluzív nagyméretű lakást, 6 db fűtöttlejáratú gépkocsibeállót a teremgarázsban, felszíni beállókat és 3 dbnagyméretű tárolót.Az épület teljesen új külsőt kapott, csak a tartószerkezetek maradtak meg.Teljeskörű átépítés történt, falak, tetőrendszer, szigetelések, vezetékek, fűtésrendszer, vízvezetékek,burkolatok, nyílászárók teljesen újak.Az épület egy 2400 m2-es telken helyezkedik elLakás nettó négyzetméter: 185,05 m2terasz: 32,28 m2 panorámásterasz: 62,33 m2saját kertrész: 300 m2Helyiséglista:emelet:• nappali-konyha-étkező: 50,55 m2• előszoba: 14,07 m2• szoba: 14,91 m2• szoba: 12,98 m2• lépcsőtér: 6,14 m2• fürdőszoba: 6,51 mFölszint:• szoba/nappali: 30,69 m2 kertkapcsolatos• szoba: 11,23 m2• vendégszoba: 10,73 m2• fürdőszoba: 4,90 m2• közlekedő: 15,90 m2• lépcsőtér: 6,14 m2Műszaki leírás:- 36cm-es tégla falazat- 15 cm vastagságú grafitos, Drywith hőszigetelés- 3 rétegű, műanyag Hofstadter, hőszigetelt nyílászárókFűtéstechnika:- Daikin hőszivattyús fűtés- padlófűtés- fancoilSzaniterek:RavakÁrnyékolás:zsalúzia opcionálisKonyhabútor:- Nobília, német csúcsminőségű konyhabútor- Bosch gépekkel- konyhaszigetExtrák:- Chameleon okosotthon rendszer (mobiltelefonról irányítható)- dekorfal- igényes beltéri ajtók- nagyértékű, vízálló Vynil padlóburkolatA lakáshoz tartozik: a teremgarázsban 2 db gépkocsibeálló, melynek ára: 10 millió Ft/beállófelszíni beálló 2 db, melynek ára 4 millió Ft/beállótároló: 17 m2 7 millió Ftösszesen: 35 millió Ft, melyeknek megvásárlása kötelező.lakás ára: 310 millió FTösszesen: 345 millió FtAmennyiben felkeltette érdeklődését az ingatlan, várom hívását, akár HÉTVÉGÉN is!

További adatok

Telekterület: -
Kert mérete: -
Erkély mérete: 396 m2
Felszereltség: -
Parkolás: -
Kilátás: panorámás
Egyéb extrák:  
-

Hirdető adatai

Hirdető neve: Marianna Osztermayer
Kapcsolattartó: Dezső Dominika Szonja
Hirdető telefonszáma: +36308191867
Honlap: -