Ház
Origó
HázOrigoval pont a központban

Pest megye, Pécel


 

Ingatlan adatai

Irányár: 125 000 000 Ft
Típus: ház
Kategória: eladó
Alapterület: 115 m2
Fűtés: -
Állapota: új
Szobák száma: 4
Építés éve: 2025
Szintek száma: -

Részletes leírás

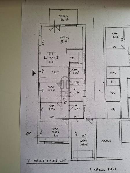
Fedezze fel ezt az exkluzív, új építésű házat Pécel csendes és zöldövezeti részén, Apáca-dombon, ahol a modern életstílus találkozik a természet közelségével. Az ingatlan 125.9 nm alapterületű, és egy 562 nm-es telken helyezkedik el, amely elegendő teret biztosít a családi élethez vagy a pihenéshez. Helyiségek és alapterületek:• Közlekedő: 6,20 m² (greslap)• Előszoba:7,48 m² (greslap)• Nappali+ konyha + étkező: 42,24 m² (laminált padló)• Kamra: 3,57 m² (greslap)• Szoba 1: 9,90 m² (laminált padló)• Szoba 2: 9.90 m² (laminált padló)• Szoba 3: 19,20 m² (laminált padló)• Terasz: 15,00 m² (greslap)• Fürdő: 5,25 m² (greslap)• Háztartási helyiség: 5,25 m² (greslap)• WC: 2,01 m² (greslap)• Garázs: 19,80 m² (greslap)A házban öt tágas szoba található, amelyek világosak és barátságosak, így ideális környezetet biztosítanak a mindennapi élethez. A prémium kivitelezés és az egyedi tervezés garantálja, hogy minden részlet a legmagasabb színvonalat képviseli. A tágas nappali központi szerepet játszik az otthonban, ahol a család együtt töltheti az időt, míg a 24.75 nm-es teraszra lépve élvezheti a gyönyörű panorámát és a friss levegőt. Az ingatlan akadálymentesített, ami különösen fontos lehet a mozgáskorlátozott személyek számára, így mindenki számára könnyen hozzáférhető. A hőszivattyús fűtés és a klímaberendezés biztosítja a kellemes hőmérsékletet a nyári melegben és a téli hidegben egyaránt. A környék biztonságos és csendes, ideális választás családok számára, akik szeretnék élvezni a természet közelségét, miközben a város kényelme is elérhető közelségben van. Pécel kiváló közlekedési lehetőségekkel rendelkezik: a helyi buszjáratok és a közeli vonatmegálló révén Budapest belvárosa könnyen megközelíthető, így a mindennapi ingázás sem jelent problémát. A környéken található iskolák, óvodák és boltok mind hozzájárulnak a kényelmes életvitelhez. Ez a modern ingatlan nem csupán egy otthon, hanem egy életstílus, amely a kényelem és a funkcionalitás tökéletes egyensúlyát kínálja. Ha érdeklik a részletek, vagy szeretne személyesen is megismerkedni ezzel a különleges lehetőséggel, bizalommal keressen minket kérdéseivel. Az ingatlan piaca folyamatosan változik, ne hagyja ki ezt a kiváló lehetőséget!Anyagok és színekAz épület megjelenését természetes, időtálló színek jellemzik:• Lábazat: sötétbarna szemcsés vakolat, amely jól ellenáll a szennyeződéseknek.• Homlokzat: törtfehér és világosbarna árnyalatok váltakozása, mely elegáns, letisztult összhatást ad.• Fa felületek: gesztenye színű, natúr hatású lazúrral kezelt faelemek.• Tető: sötétbarna Terrán vagy Bramac betoncserép.• Alapozás: masszív sávalap, vízszigeteléssel és hőszigeteléssel, hogy az épület stabil és száraz maradjon.• Falak: korszerű Porotherm tégla, kívül 10 cm grafitos hőszigeteléssel a megfelelő hővédelem érdekében.• Válaszfalak: hang- és hőszigetelő tégla falazattal.• Födém: vasbeton gerendás-béléstestes szerkezet, hőszigeteléssel ellátva.•Tetőszerkezet: fa fedélszék, védőkezeléssel ellátva.• Hőszigetelés: a külső falakon, lábazaton, födémen és a padlóban is több rétegben biztosított, hogy télen meleg, nyáron hűvös maradjon a ház.• Nyílászárók: Külső nyílászárók: fa szerkezetű, háromrétegű üvegezéssel, hőszigetelt kivitelben.• Belső ajtók: fa pallótokos ajtók.• Garázsajtó: szekcionált, modern kialakítás.• Redőny: opcionálisan beépíthető.• Burkolatok és belső terek Padló: helyiségtől függően kerámialap vagy laminált parketta.• Falak: diszperziós festés, vizes helyiségekben csempézett felületek.• Terasz: különálló szerkezet, fagyálló burkolattal, szigeteléssel.Kert és környezet• Gépkocsibeálló és utak: tartós, beton térkő burkolattal.• Kerítés: pilléres, fa betétes utcai kerítés, a ház stílusához illően.• Kert: parkosított, igény szerint alakítható.

További adatok

Telekterület: 562 m2
Kert mérete: 562 m2
Erkély mérete: 15 m2
Felszereltség: -
Parkolás: -
Kilátás: -
Egyéb extrák:  
-

Hirdető adatai

Hirdető neve: Otthon Centrum
Kapcsolattartó: Doktor Tímea
Hirdető telefonszáma: +36 70 412 5796
Honlap: -