Ház
Origó
HázOrigoval pont a központban

Baranya megye, Pécs


 

Ingatlan adatai

Irányár: 79 900 000 Ft
Típus: ház
Kategória: eladó
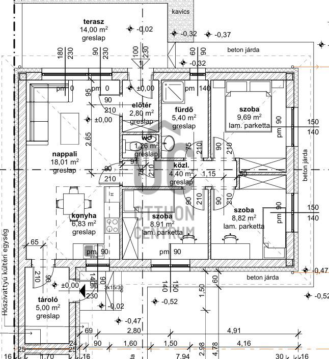
Alapterület: 71 m2
Fűtés: -
Állapota: új
Szobák száma: 4
Építés éve: 2026
Szintek száma: -

Részletes leírás

Ez az új építésű családi ház ideális választás azoknak, akik szeretnének teret adni a közös pillanatoknak és a nyugodt mindennapoknak.A nappali + 3 hálószobás elrendezés lehetővé teszi, hogy mindenkinek meglegyen a saját kuckója, miközben a család együtt lehet.A tágas nappali a közös játékok, tanulás és esti beszélgetések színtere lehet, míg a külön hálószobák nyugodt pihenést biztosítanak kicsiknek és nagyoknak egyaránt.A hőszivattyús fűtés egyenletes meleget ad télen, nyáron pedig kellemes klímát biztosít, mindezt alacsony fenntartási költségek mellett – így több marad a családra.A csendes, barátságos környék biztonságos játszóteret jelent a gyerekeknek, a terasz pedig tökéletes helyszíne lehet közös reggeliknek, születésnapoknak vagy nyári családi vacsoráknak.Ez az otthon nemcsak lakóhely, hanem egy tér, ahol felcseperednek a gyerekek és emlékek születnek.Ha olyan otthont keres, ahol a család nyugalomban és biztonságban élhet, ezt a házat érdemes személyesen is megnézni.Szeretettel várom egy megtekintésre – kezdjük itt a család új fejezetét!Várható Átadás:2026,December

További adatok

Telekterület: 338 m2
Kert mérete: 338 m2
Erkély mérete: 14 m2
Felszereltség: -
Parkolás: -
Kilátás: -
Egyéb extrák:  
-

Hirdető adatai

Hirdető neve: Otthon Centrum
Kapcsolattartó: Bayerné Erős Brigitta
Hirdető telefonszáma: +36 70 412 3411
Honlap: -