Ház
Origó
HázOrigoval pont a központban

Baranya megye, Pécs


 

Ingatlan adatai

Irányár: 55 000 000 Ft
Típus: lakás (újépítésű)
Kategória: eladó
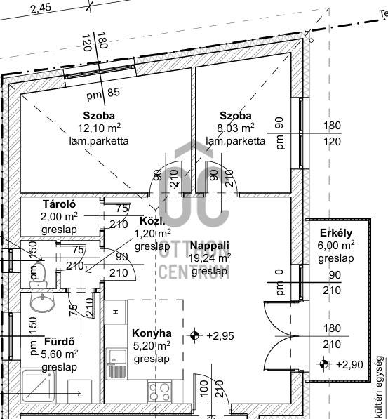
Alapterület: 54 m2
Fűtés: -
Állapota: új
Szobák száma: 3
Építés éve: 2026
Szintek száma: -

Részletes leírás

Az első közös lakás nemcsak egy álom beteljesülése, hanem egy jövőbe mutató döntés is.Pécs egyik csendes, jól megközelíthető környékén található ez az 54,4 m²-es, új építésű, első emeleti lakás,praktikus, 2 szoba, nappali elrendezéssel, amely tökéletes teret ad a közös élethez – és később akár egy növekvő családhoz is.Az ingatlan épül..2026.végén költözhető, modern műszaki tartalommal.A korszerű hőszivattyús fűtés alacsony rezsit és hosszú távú fenntarthatóságot jelent – kevesebb kiadás, több lehetőség.A 6 m²-es erkély nemcsak egy szerethető élettér, hanem olyan extra, amely növeli az ingatlan piaci értékét és bérbeadhatóságát is.A nyugodt környezet, a zöld területek közelsége és Pécs folyamatosan keresett lakáspiaca biztosítja, hogy ez az otthon később is könnyen értékesíthető vagy kiadható legyen.Ha olyan első otthont kerestek, amely ma a közös életetek színtere, holnap pedig biztos befektetés, vegyétek fel velem a kapcsolatot, és ismerjétek meg ezt a lehetőséget személyesen!

További adatok

Telekterület: -
Kert mérete: -
Erkély mérete: 6 m2
Felszereltség: -
Parkolás: -
Kilátás: udvari
Egyéb extrák:  
-

Hirdető adatai

Hirdető neve: Otthon Centrum
Kapcsolattartó: Bayerné Erős Brigitta
Hirdető telefonszáma: +36 70 412 3411
Honlap: -