Ház
Origó
HázOrigoval pont a központban

Hajdú-Bihar megye, Hajdúszoboszló


 

Ingatlan adatai

Irányár: 84 000 000 Ft
Típus: ház
Kategória: eladó
Alapterület: 134 m2
Fűtés: gáz (konvektor)
Állapota: -
Szobák száma: 4
Építés éve: 1985
Szintek száma: -

Részletes leírás

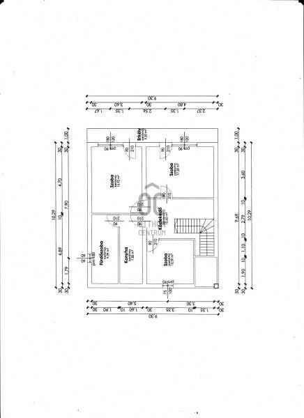
Csendes, kertvárosi környezetben eladó egy 220 nm alapterületű,több generáció együttélésére alkalmas családi ház.Főbb jellemzők: - Betonalapon, téglafalazattal, stabil szerkezet - Telek: 700 nm, parkosított rész, kert.- 220 nm alapterületű- 5 szoba, nappali, étkezős, - 2 fürdőszoba, - 2 konyha- Műanyag nyílászárók, - Gázfűtés, plusz egy nagyméretű, épített cserépkályhaA házhoz tartozik egy 60 nm-es fiatalos, lakrész, konyhával, fürdőszobával. Ez a Hajdúszoboszló szívében található, családok számára ideális otthon garantáltan elnyeri a tetszésedet! A Bartóktelepen, egy felkapott környéken helyezkedik el, ahol a környék ellátottsága kiváló, így minden szükséges szolgáltatás karnyújtásnyira található. Az ingatlan 220 nm alapterületű, és egy 700 nm-es telken helyezkedik el, ami elegendő teret biztosít a család minden tagjának. A házban öt tágas szoba két fürdőszoba és konyha található, melyek mindegyike világos.Téli estéken, a nappaliban található egyedi tervezésű cserépkályha ad otthonos,meghitt hangulatot.A két fürdőszoba praktikus megoldást kínál a család mindennapi életéhez, így reggelente senkinek sem kell türelmetlenül várakoznia. A tágas nappali a középpontjában áll az otthonnak, ahol a családi összejövetelek és baráti találkozók kellemesen telhetnek. Az ingatlanhoz tartozik egy 22 nm-es terasz is, ahol a nyári estéken élvezheted a friss levegőt, valamint egy 9.3 nm-es erkély, ami a reggeli kávézásokhoz ideális helyszín. A környék csendes és barátságos,a családi ház ideális üdültetésre, vagy nagycsaládos életre.Ne habozz, ha egy igazán különleges otthont keresel, ami megfelel a család igényeinek! Ez a ház nemcsak egy ingatlan, hanem egy otthon, ahol a család minden tagja megtalálhatja a számításait. Ha bármilyen kérdésed van, vagy szeretnéd megtekinteni az ingatlant, bizalommal kereshetsz!„Az energetikai tanúsítvány készítése folyamatban van, amint rendelkezésre áll, úgy azzal a hirdetés frissítésre kerül.”

További adatok

Telekterület: 700 m2
Kert mérete: 700 m2
Erkély mérete: 31 m2
Felszereltség: -
Parkolás: -
Kilátás: -
Egyéb extrák:  
-

Hirdető adatai

Hirdető neve: Otthon Centrum
Kapcsolattartó: Vargáné Nagy Mariann
Hirdető telefonszáma: +36 70 412 3106
Honlap: -