Ház
Origó
HázOrigoval pont a központban

Budapest, XIV.kerület


 

Ingatlan adatai

Irányár: 168 000 000 Ft
Típus: lakás (tégla)
Kategória: eladó
Alapterület: 79 m2
Fűtés: házközponti egyedi méréssel
Állapota: -
Szobák száma: 4
Építés éve: 2018
Szintek száma: -

Részletes leírás

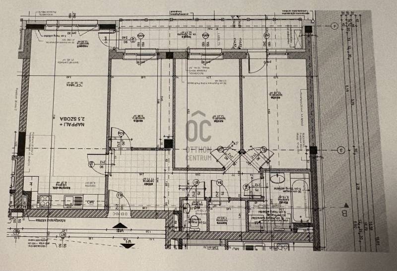
Budapest XIV. kerületének kedvelt, csendes részén, Kiszuglóban keresi új tulajdonosát egy hangulatos, bruttó 84 m2 alapterületű, étkezőkonyhás nappali + 3 szobás, 5.emeleti tégla lakás, rendezett, 2018-ban használatba vett társasházban. Ideális választás lehet pároknak, családoknak vagy befektetőknek is, akik a városi kényelmet szeretnék egy csendesebb, nyugodtabb helyen élvezni.A KÖRNYEZETRŐL✅ XIV. kerület, Kiszugló – csendes, mégis központi elhelyezkedés.✅ Barátságos, zöldövezeti környék, ideális, ha a városközpont közelségét szeretné élvezni, de nyugodtabb környezetben.✅ Kiváló a közlekedés, az Örs vezér tere pár perces távolság, ami rengeteg busz- és metrókapcsolatot jelent és gyors belvárosi elérést.✅ 5–10 perces sétatávolságon belül elérhetők a napi életvitelhez szükséges dolgok, élelmiszerbolt, pékség, óvoda, iskola, gyógyszertár, edzőterem.A TÁRSASHÁZRÓL✅ 2018-es években épült, 6 szintes, kiváló állapotú, tégla falazatú újépítésű társasház.✅ Rendezett homlokzat és gondozott, tiszta közös terek jellemzik.✅ Az épületben természetesen van lift, a lakás az 5. szinten, a legfeleső emeleten található.
A LAKÁSRÓL➡️ 5. emeleti, 79 m2 teljes alapterületű, nagyon világos, körbe-napozott, étkezőkonyhás + 3 szobás ingatlan, 10 m2-es erkéllyel➡️ Tulajdoni lapon 79 m2-es, délnyugati tájolású, nagyon világos és nagyon hangulatos otthon.➡️ Elosztása: előszoba és közlekedő, amerikai konyhás nappali étkezővel, 3 hálószoba, zuhanyzós fürdőszoba, toalett, kamra/spejz➡️ Nappali és hálószobák igényes laminált padlóval, 
az előszoba, konyha, fürdőszoba, WC járólappal burkolt.
➡️ A műanyag ablakok 3 rétegűek és redőnnyel felszereltek➡️ Az egyedileg tervezett, modern konyhagépekkel felszerelt konyhabútor
a vételár részét képezi.➡️ Műszaki és esztétikai állapot kiváló, tulajdonosai folyamatosan gondozzák, 2025-ben nyáron kapott egy esztétikai felújítást, \"ráncfelvarrást\" (festés és új tapéták)➡️ A szobákban található, méretre készített hatalmas gardrób szekrények, valamint az előszobában szintén méretre készített szekrények is a vételár részét képezik➡️ Fűtése házközponti, hőmennyiségmérővel, hűtését 2 db dual klímaberendezés biztosítja, így minden szobát saját belső klímaberendezés tud temperálni➡️ 
Közös költség: kb 15.000 Ft/hó➡️ A lakáshoz vásárolható egy külön teremgarázshely 8.000.000 Ft-ért, emelős szerkezet alsó részén van a garázshely és magasabb autóval is be lehet állni (1,8m magas)➡️ Kuriózum a lakásban található kamra, ami nagyon sok mindent elnyel, de ha valakinek szüksége van még 1 zuhanyzóra, akkor ott kialakíthatóFINANSZÍROZÁSBAN ONLINE ÜGYINTÉZÉSSEL IS SEGÍTÜNK✅ Többszörösen díjnyertes irodánk hitelszakértői 20+ év tapasztalattal várják.✅ Bank-független hitelcenterünk díjmentesen versenyezteti a bankok ajánlatait.✅ Egyedi, személyre szabott hitelkonstrukciók és kedvezményes feltételek.✅ Fogyasztóbarát hitelek, babaváró támogatás, teljes körű CSOK PLUSZ és OTTHON START ügyintézés.✅ Igény esetén előzetes időpont egyeztetéssel akár munkaidőn kívül is.Ha nyugodt és kertvárosi hangulatú környéken szeretne egy tágas terekkel rendelkező, világos, azonnal költözhető otthont és fontos szempont a csend és a jó közlekedés, akkor ezt ne hagyja ki!Bővebb információért és megtekintési időpontért kérem, hívjon bizalommal!---------------------------------------------------------------------------------------------------------------------------------------------------------------------Vi aspetta una casa di 4 stanze a Zugló, affascinante, molto sofisticata, soleggiata, spaziosa, confortevole e tranquilla!Nella popolare e tranquilla zona del 14° distretto di Budapest, a Kiszugló, un accogliente appartamento in mattoni di 84 m² di superficie lorda, con soggiorno, sala da pranzo e cucina + 3 camere da letto, al 5° piano, è in cerca di un nuovo proprietario, in un condominio ordinato, inaugurato nel 2018.Può essere la scelta ideale per coppie, famiglie o investitori che desiderano godersi il comfort della città in un luogo più tranquillo e silenzioso.INFORMAZIONI SULLA ZONA✅ 14° distretto, Kiszugló – posizione tranquilla ma centrale.✅ Zona verde e accogliente, ideale per chi desidera godere della vicinanza del centro città, ma in un ambiente più tranquillo.✅ Ottimi collegamenti: Piazza Örs Vezér è a pochi minuti di distanza, il che significa numerosi collegamenti con autobus e metropolitana e un rapido accesso al centro città.✅ A 5-10 minuti a piedi, troverete tutto il necessario per la vita quotidiana, tra cui un supermercato, un panificio, un asilo, una scuola, una farmacia e una palestra.INFORMAZIONI SUL CONDOMINIO✅ Un condominio di 6 piani in mattoni, in ottime condizioni, costruito nel 2018.✅ È caratterizzato da una facciata ordinata e da spazi comuni puliti e ben tenuti.✅ Naturalmente, l\'edificio è dotato di ascensore; l\'appartamento si trova al 5° piano, l\'ultimo piano.INFORMAZIONI SULL\'APPARTAMENTO➡️ 5° piano, 79 m² di superficie totale, molto luminoso e soleggiato, cucina abitabile + 3 locali, balcone di 10 m²➡️ Scheda immobile 79 m², orientamento sud-ovest, casa molto luminosa e accogliente.➡️ Distribuzione: ingresso e corridoio, cucina americana, soggiorno con sala da pranzo, 3 camere da letto, bagno con doccia, WC, dispensa/dispensa➡️ Soggiorno e camere da letto con pavimento in laminato di alta qualità, ingresso, cucina, bagno e WC sono piastrellati.➡️ Le finestre in plastica sono a 3 strati e dotate di persiane➡️ I mobili da cucina dal design personalizzato, dotati di moderni elettrodomestici, sono inclusi nel prezzo di acquisto.➡️ Ottime condizioni tecniche ed estetiche, i proprietari se ne prendono costantemente cura, nell\'estate del 2025 ha ricevuto una ristrutturazione estetica, \"riparazione rughe\" (tinteggiatura e nuova carta da parati)➡️ Anche gli enormi armadi su misura nelle camere, così come gli armadi su misura nel corridoio, sono inclusi nel prezzo di acquisto➡️ Il riscaldamento è centralizzato, con contatore di calore, e il raffrescamento è fornito da 2 doppi condizionatori, quindi ogni stanza può essere temperata dal proprio condizionatore interno➡️ Spese condominiali: circa 15.000 fiorini ungheresi al mese➡️ È possibile acquistare un garage interno separato per l\'appartamento per 8.000.000 fiorini ungheresi. Il garage si trova nella parte inferiore della struttura di sollevamento ed è possibile parcheggiarlo con un\'auto più alta (1,8 m di altezza).➡️ Una curiosità è la dispensa nell\'appartamento, che assorbe molte cose, ma se qualcuno ha bisogno di un\'altra doccia, può essere ricavata lì.ASSISTIAMO ANCHE CON I FINANZIAMENTI CON L\'ELABORAZIONE ONLINE✅ Gli esperti di credito del nostro ufficio pluripremiato vi aspettano con oltre 20 anni di esperienza.✅ Il nostro centro crediti indipendente dalle banche confronta gratuitamente le offerte delle banche.✅ Strutture di prestito uniche e personalizzate e condizioni preferenziali.✅ Prestiti a misura di consumatore, assistenza per neonati, gestione completa di CSOK PLUSZ e OTTHON START.✅ Se necessario, previo accordo, anche al di fuori dell\'orario di lavoro.Se desiderate una casa spaziosa, luminosa e subito abitabile in un quartiere tranquillo e suburbano, e se il silenzio e i buoni collegamenti sono fattori importanti, allora non lasciatevela sfuggire!Per maggiori informazioni e un appuntamento per visionare l\'immobile, contattateci con fiducia!

További adatok

Telekterület: -
Kert mérete: -
Erkély mérete: 10 m2
Felszereltség: -
Parkolás: -
Kilátás: udvari
Egyéb extrák:  
-

Hirdető adatai

Hirdető neve: Otthon Centrum
Kapcsolattartó: Ravai Emőke
Hirdető telefonszáma: +36 70 716 9601
Honlap: -