Ház
Origó
HázOrigoval pont a központban

Budapest, XIII.kerület


 

Ingatlan adatai

Irányár: 84 354 000 Ft
Típus: lakás (újépítésű)
Kategória: eladó
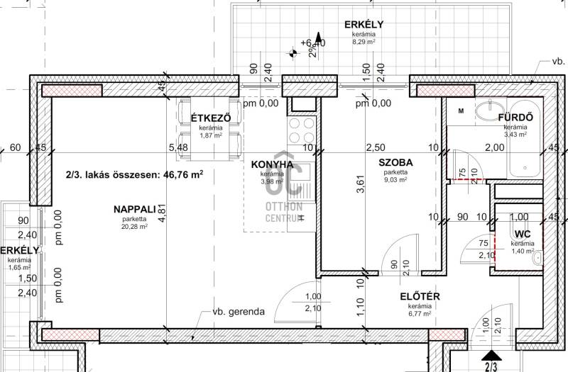
Alapterület: 47 m2
Fűtés: -
Állapota: új
Szobák száma: 2
Építés éve: 2026
Szintek száma: -

Részletes leírás

SZERKEZETKÉSZProjekt bemutatásaA XIII. kerület legfrekventáltabb részén, közel az M3-as metró Göncz Árpád Városközponti megállójához (Árpád híd) és az 1-es villamoshoz, csendes mellékutcában kínálunk eladásra újépítésű lakásokat, számos referenciával rendelkező, nagymúltú beruházó projektjében.A lakások változatos méretűek: a stúdió lakástól a nagyteraszos, több szobásig minden típus megtalálható a házban. Mindegyikhez tartozik erkély vagy nagy méretű terasz. A földszinti lakások kertkapcsolatosak.A társasház a jövő korának megfelelő, modern, hőszivattyús mennyezeti hűtés, -fűtéses rendszerű, lakásonként elkülönített szabályzókkal, ami minimális energiafelhasználást tesz lehetővé télen és nyáron egyaránt, minden tulajdonos számára. A technológiának köszönhetően a lakótereken belül nincs szükség külön fűtőtestekre, ami által a helyiségek berendezhetősége is optimális.A beruházó rendkívüli rugalmassága lehetővé teszi minden vevő számára a belső kialakítás és beosztás változtatását is, így minden lakás teljesen személyre szabható.Mind a környék infrastruktúrája, mind pedig a belváros közelsége biztosítja, hogy az itt lakók mindent elérjenek percek alatt: számos bevásárlási lehetőség, óvodák, iskolák, bevásárló központ, gyógyszertár, posta vagy játszótér, parkok vannak karnyújtásnyi távolságra.A kiváló lokáció és az alacsony energiaigény miatt kiemelkedő az ingatlanok akár hosszú-, akár rövidtávú kiadhatósága is.

További adatok

Telekterület: -
Kert mérete: -
Erkély mérete: 10 m2
Felszereltség: -
Parkolás: -
Kilátás: kertre néző
Egyéb extrák:  
-

Hirdető adatai

Hirdető neve: Otthon Centrum
Kapcsolattartó: Frimmel András
Hirdető telefonszáma: +36 70 461 9331
Honlap: -