Ház
Origó
HázOrigoval pont a központban

Pest megye, Dunaharaszti


 

Ingatlan adatai

Irányár: 146 000 000 Ft
Típus: ház
Kategória: eladó
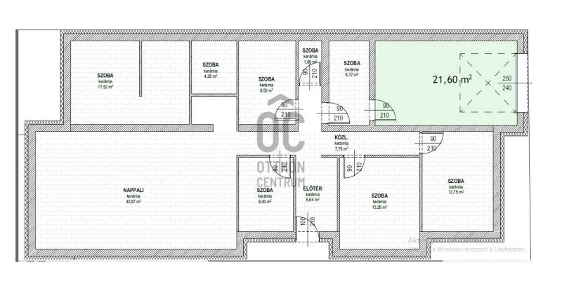
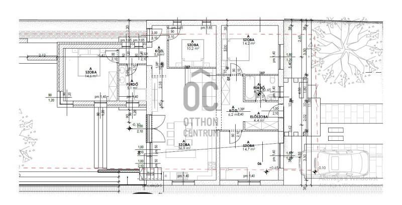
Alapterület: 158 m2
Fűtés: gáz (cirko)
Állapota: új
Szobák száma: 5
Építés éve: 2026
Szintek száma: -

Részletes leírás

Autóbeálló kapcsolatos nettó 136 nm alapterületű+ 22 nm (garázs)+20 nm-es autó beállóval épülő földszintes, utcafronti ikerház kerül most értékesítésre 510 m2-es hozzá tartozó telekrésszel.Az ingatlan 4 hálószobával, amerikai konyhás nappalival, két fürdőszobával, terasszal, van tervezve, azonban ez még módosítható, mert a kivitelezést a szerződéskötés után kezdi el a kivitelező, az alaprajzok tájékoztató, ötletadó jellegűek, így teljes mértékben a saját igényei szerint történhet meg az ingatlan kialakítása. Csendes kertvárosi környezet, saját helyrajzi számmal rendelkező ikerház, amely pergolás autóbeállóval kapcsolódik a másik ingatlannal.Főbb paraméterek:- amerikai konyhás nappali + 4 hálószoba- nettó: 158 m2, 400 m2 telek- 30-as kerámia főfalak, 10 cm ytong válaszfal- főfal 15 cm EPS, aljzatban 12 cm, födémen 25 cm szigetelés- kondenzációs gázkazán/hőszivattyú/ klíma berendezés,- földszinten padlófűtés, szobákban lapradiátorok- 3 KW-os napelem rendszer,- 3 rétegű 6 légkamrás műanyag nyílászárókkal redőnnyel, szúnyoghálóval- riasztórendszer, kaputelefon előkészítés- járda az épület körül, kocsibeálló a telken és az utcán 10x20 cm viacolorralVárható átadás: szerződéskötéstől számított 8 hónap.Az energetikai tanúsítvány készítése folyamatban van.Kiváló elhelyezkedés:- Budapest gyorsan elérhető- Liszt Ferenc Repülőtér: 20 perc- M0 autópálya: 3 perc- M5 autópálya: kb. 15 kmTovábbi információért, kérem keressen!

További adatok

Telekterület: 402 m2
Kert mérete: 402 m2
Erkély mérete: -
Felszereltség: -
Parkolás: -
Kilátás: -
Egyéb extrák:  
-

Hirdető adatai

Hirdető neve: Otthon Centrum
Kapcsolattartó: Nemes Mária
Hirdető telefonszáma: +36 70 716 9176
Honlap: -