Ház
Origó
HázOrigoval pont a központban

Pest megye, Dunaharaszti


 

Ingatlan adatai

Irányár: 180 000 000 Ft
Típus: ház
Kategória: eladó
Alapterület: 205 m2
Fűtés: gáz (cirko)
Állapota: új
Szobák száma: 6
Építés éve: 2026
Szintek száma: -

Részletes leírás

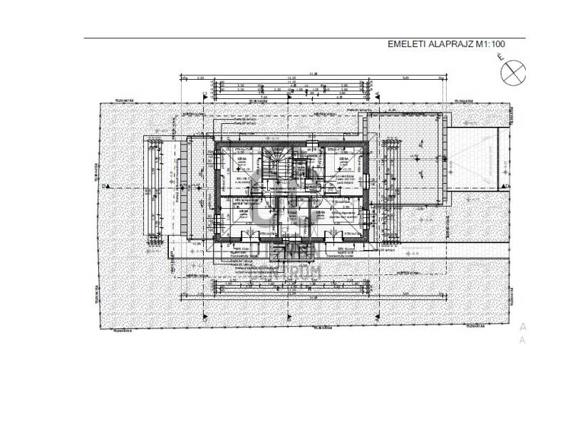
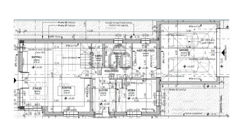
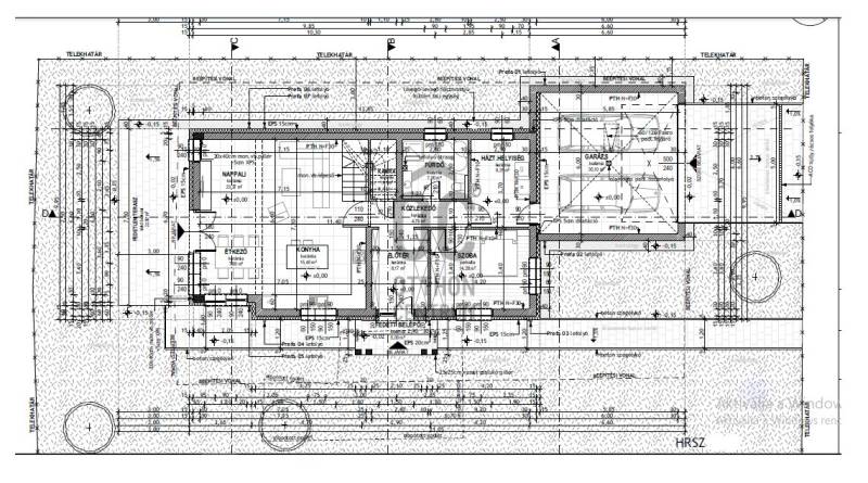
Dunaharasztin újépítésű nappali + 5 hálószobás családi ház 2026-os átadással ELADÓ!Modern, energiahatékony, családi ház épül a Bezerédi lakóparknál.Főbb jellemzők:- nettó 205 m2 (lakótér 169,83 + 35,1 m2 garázs)- 566 m2 telek- 30-as kerámia főfalak, 10 cm ytong válaszfal- főfal 15 cm EPS, aljzatban 12 cm, födémen 25 cm szigetelés- járda az épület körül, kocsibeálló a telken és az utcán 10x20 cm viacolorral- 3 x 16 A- 3,2 KW napelem – alacsony rezsiköltségek- 2 állásos garázs, szkcionált autómata kapuval- 46 m2-es amerkai konyhás nappali- 1 földszinti, 4 tetőtéri szoba, - 2 fürdőszoba, kamra, gardrób- 3 rétegű 6 légkamrás műanyag nyílászárókkal redőnnyel, szúnyoghálóval- fűtés és melegvízellátás kondenzációs gázkazánról- padlófűtés és radiátoros hőleadók- riasztórendszer, kaputelefon előkészítésKiváló elhelyezkedés:- Budapest gyorsan elérhető- Liszt Ferenc Repülőtér: 20 perc- M0 autópálya: 3 perc- M5 autópálya: kb. 15 kmAz energetikai tanúsítvány készítése folyamatban van.További információért, kérem keressen!

További adatok

Telekterület: 566 m2
Kert mérete: 566 m2
Erkély mérete: -
Felszereltség: -
Parkolás: -
Kilátás: -
Egyéb extrák:  
-

Hirdető adatai

Hirdető neve: Otthon Centrum
Kapcsolattartó: Nemes Mária
Hirdető telefonszáma: +36 70 716 9176
Honlap: -