Ház
Origó
HázOrigoval pont a központban

Budapest, XIV.kerület


 

Ingatlan adatai

Irányár: 449 000 000 Ft
Típus: kereskedelmi/ipari ingatlan
Kategória: eladó
Alapterület: 380 m2
Fűtés: -
Állapota: -
Szobák száma: -
Építés éve: -
Szintek száma: -

Részletes leírás

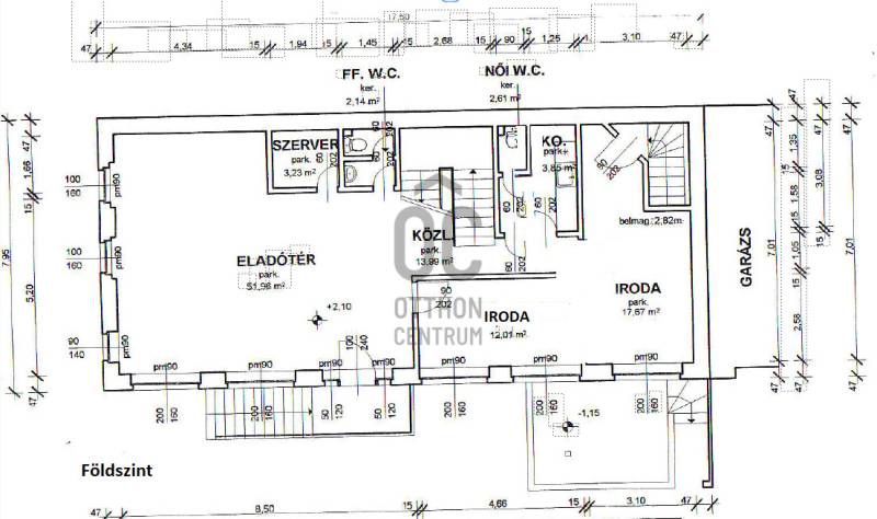
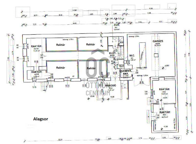
Budapest XIV. kerületének Alsórákos városrészében, a Szugló utcában kínálunk eladásra egy kiváló adottságokkal rendelkező, ipari–irodai hasznosításra alkalmas ingatlant.Elhelyezkedés, megközelíthetőségAz ingatlan szilárd burkolatú úton, kiváló közlekedési kapcsolatokkal érhető el:-busz, villamos, troli a közelben-Bosnyák tér: 2 perc gyalog-Zenit Corso: 5 perc gyalogA környék vegyes funkciójú: irodai, ipari, kereskedelmi és lakóingatlanok egyaránt megtalálhatók, több új építésű társasház közvetlen közelben.A Szugló utca közepes gépjárműforgalmú, gyalogosforgalma alacsony, ami ideálissá teszi irodai vagy ipari tevékenységre.Műszaki állapot, felújításokAz épület folyamatosan karbantartott, átlagos–jó műszaki állapotú:-kb. 5 éve teljes tetőcsere (zsindelytető)-alagsor és magasföldszint felújítva-mosható falfestékek-részben új nyílászárók-öntött műgyanta burkolat-teljes elektromos hálózat felújítva-minden helyiség split klímával légkondicionált-kiépített biztonságtechnikai rendszerFőbb adatok:-Áram erősség: 3 x 40Ah-Becsült építési év: 1970-es évek-Telek: közbenső fekvésű, összközműves-Beépíthetőség: 30%-Megengedett építménymagasság: 10,5 m-Minimális telekméret: 800 m²-Összes nettó felépítmény: 397 m²-Telek: sík, kerített, utcára nyitott-Közművek: víz, gáz, villany, csatorna-Udvar: 13 férőhelyes parkolóFunkció és elrendezésAlagsor:-több különálló helyiség-mosdó-teljes komfort, légkondicionálásFöldszint:-2 nagyobb légtér-külön tárolók-mosdóEmelet:-2 iroda-étkező-konyha-2 mellékhelyiség-galéria (rakodásra alkalmas)Melléképület:-nagy tároló-2 különálló helyiség-külön mosdó-(jelenleg állatorvosi ultrahang rendelőként funkcionál)HasznosításAz ingatlan jelenleg állatorvosi laborként működik, azonban kiválóan alkalmas:-irodai központnak-laboratóriumi tevékenységre-kereskedelmi vagy ipari célra-fejlesztési telekként történő hasznosításraAmennyiben felkeltette érdeklődését az ingatlan, úgy várom hívását a hét mindennapján!

További adatok

Telekterület: -
Kert mérete: -
Erkély mérete: -
Felszereltség: -
Parkolás: -
Kilátás: -
Egyéb extrák:  
-

Hirdető adatai

Hirdető neve: Otthon Centrum
Kapcsolattartó: Pásztor Csaba
Hirdető telefonszáma: +36 70 388 5476
Honlap: -