Ház
Origó
HázOrigoval pont a központban

Zala megye, Nagykanizsa


 

Ingatlan adatai

Irányár: 89 000 000 Ft
Típus: ház
Kategória: eladó
Alapterület: 150 m2
Fűtés: gáz (cirko)
Állapota: -
Szobák száma: 4
Építés éve: 1980
Szintek száma: -

Részletes leírás

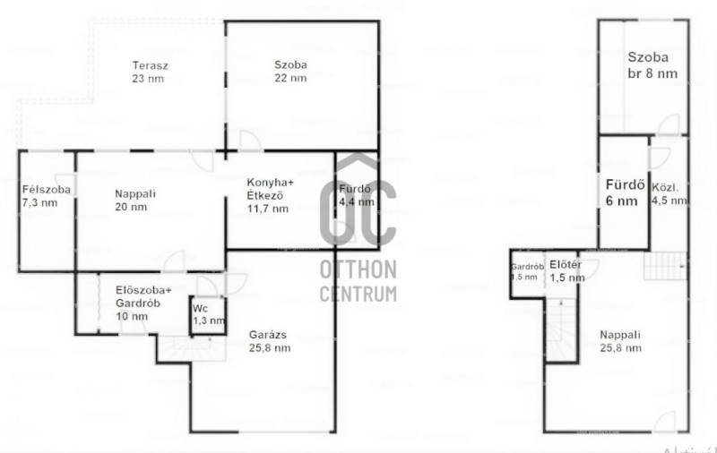
Minőségi kivitelezés, sok fantáziával! Egyedi kialakítású, igényes belvároshoz közeli ingatlan eladó!Az ingatlan teljes körű felújítása három éve történt meg. A ház külső és belső terei minőségi anyagok felhasználásával, modern stílusban újultak meg.Ha szeretne egy belváros közeli, KÉT GENERÁCIÓS, igényes, zöld övezeti, azonnal költözhető családi házat optimális, karbantartható telekkel, akkor megtalálta amit keresett!Tökéletes választás, ha modern, kényelmes, színvonalas otthonra vágyik!Az ingatlan jellemzői:- a ház 2022-ben teljes körű felújításon esett át, kitűnő állapotú, kívül-belül minőségi anyagok felhasználásával készült- helyiségek a földszinten: 2 hálószoba, nappali, amely terasz /23 m2/ kapcsolattal rendelkezik, közlekedő, konyha-étkező, fürdő-WC, külön WC, garázs-103 m2- emelet helyiségei: 1 hálószoba, hatalmas nappali, gardrób, közlekedő, fürdő-WC, gyerekeknek játszó galériás szoba- össz 47 m2- új vízhálózat került kiépítésre- villamosvezetékek teljes korszerűsítése megtörtént- 3 fázis rendelkezésre áll- fűtése kondenzációs gázcirkó kazánról biztosított, radiátorok segítségével- továbbá Fujitsu hűtő- fűtő klíma gondoskodik az optimális hőmérsékletről- ablakok 2 rétegű műanyag szerkezetűek, rolóval felszereltek- fürdőt igényes olasz csempével burkolták- igényes padló burkolatok minden helyiségben, a földszinten esztrich beton került a burkolatok alá- tető Bramac cseréppel fedett, alatta szigetelés található- a ház 10 cm külső szigetelést kapott- kerítés esztétikus VPC- CSOK, hitel igénylésben, bankfüggetlen, hiteles kollégánk, díjmentesen áll rendelkezéséreA telek 320 m2-es, teljesen körbe kerített. Tároló, melléképület tartozik az ingatlanhoz.Ha hirdetésem felkeltette érdeklődését, várom hívását.Irodánk teljes körű, ingyenes szolgáltatást nyújt, kereső ügyfeleinknek.Szakszerű tanácsadással, hitel ügyintézéssel, energetikai tanúsítvány elkészítésével és kedvező díjszabású ügyvéddel nyújtunk segítséget.

További adatok

Telekterület: 320 m2
Kert mérete: 320 m2
Erkély mérete: 23 m2
Felszereltség: -
Parkolás: -
Kilátás: -
Egyéb extrák:  
-

Hirdető adatai

Hirdető neve: Otthon Centrum
Kapcsolattartó: Vitovszkiné Kátai Szilvia
Hirdető telefonszáma: +36 70 388 5496
Honlap: -