Ház
Origó
HázOrigoval pont a központban

Pest megye, Cegléd


 

Ingatlan adatai

Irányár: 70 000 000 Ft
Típus: ház
Kategória: eladó
Alapterület: 77 m2
Fűtés: elektromos
Állapota: új
Szobák száma: 4
Építés éve: 2024
Szintek száma: -

Részletes leírás

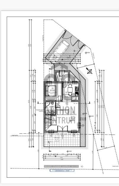
Eladó Cegléden egy új építésű 2 szintes családi ház a horgász tavaknál.Az ingatlan főbb jellemzői:- hasznos alapterület: 78 nm- telek mérete: 305 nm- sávalapozás- 30-as tégla falazat- 10 cm-es válaszfalak- fafödém- tető: piros színű kerámia cserép- fehér színű műanyag nyílászárók- meleg padlós helyiségek laminált padló burkolatot kapnak, a többi helyiségben hidegburkolat- földszinten: nappali, konyha, szoba, előszoba, zuhanyzó- emelet: 2 szoba, közlekedő, zuhanyzó, tárolóIrodánkban teljes körű ügyintézéssel várjuk bankfüggetlen tanácsadónknál.A hirdetésben szereplő információk a megbízótól származnak, pontosságukért felelősséget nem vállalunk.Ez az ingatlan a \"Felező csomag\" megbízási portfólióhoz tartozik. Részletek az Otthon Centrum weboldalán.

További adatok

Telekterület: 305 m2
Kert mérete: 305 m2
Erkély mérete: -
Felszereltség: -
Parkolás: -
Kilátás: -
Egyéb extrák:  
-

Hirdető adatai

Hirdető neve: Otthon Centrum
Kapcsolattartó: Törökné Varga Rita
Hirdető telefonszáma: +36 70 388 5251
Honlap: -