Ház
Origó
HázOrigoval pont a központban

Budapest, I.kerület


 

Ingatlan adatai

Irányár: 180 000 000 Ft
Típus: lakás (tégla)
Kategória: eladó
Alapterület: 73 m2
Fűtés: -
Állapota: -
Szobák száma: 3
Építés éve: 1910
Szintek száma: -

Részletes leírás

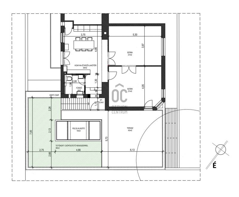
Eladásra kínálunk Krisztinavárosban egy 73 nm-es, amerikai-konyhás nappali plusz 2 hálószobás lakást, tetőkerttel és intim, zöld tetőterasszal. A lakás egy 1910 körül épült, tervező: Porgesz József, historizáló/koraeklektikus stílusú társas ház első emeletén helyezkedik el, hangulatos belső kertre néző ablakokkal. Az épület Budapest fővárosi helyi védettségű építészeti örökség, homlokzata kiváló állapotú, a díszes, művészien megmunkált kapubejárat pedig a századforduló eleganciáját idézi. A védettségnek köszönhetően a kapualj és a lépcsőház is gondosan karbantartott, rendezett állapotú.A lakás maga is igényes. A konyha és a fürdőszoba modern, letisztult, fiatalos designnal készült, a tágas szobákban pedig szép állapotú parketta található.A lakás különlegessége a szokatlan, ám kifejezetten praktikus elrendezés: klasszikus nappali helyett a tágas, amerikai konyhás étkező tölti be a nappali funkcióját is. A két, egyenként 21 m²-es hálószoba külön bejárattal rendelkezik a nappali térből, ugyanakkor igény esetén össze is nyithatók, ezzel egy egyedülállóan nagy, elegáns élettér alakítható ki. A környék infrastrukturális ellátottsága kiváló, számos bolt, kávézó és étterem található a közelben, így minden szükséges szolgáltatás elérhető akár gyalogosan is. A Déli pályaudvar és a Széll Kálmán tér közelsége közlekedési szempontból kedvező.Ez a lakás valódi ritkaság a belvárosban – történelmi hangulat, modern komfort és átgondolt felújítás találkozik benne. Kincset érő lehetőség!Hívjon, jöjjön el, vegye meg!

További adatok

Telekterület: -
Kert mérete: -
Erkély mérete: 42 m2
Felszereltség: -
Parkolás: -
Kilátás: kertre néző
Egyéb extrák:  
-

Hirdető adatai

Hirdető neve: Otthon Centrum
Kapcsolattartó: Lengyel-Nagy Evelyn
Hirdető telefonszáma: +36 70 412 3241
Honlap: -