Ház
Origó
HázOrigoval pont a központban

Pest megye, Szigethalom


 

Ingatlan adatai

Irányár: 99 000 000 Ft
Típus: ház
Kategória: eladó
Alapterület: 99 m2
Fűtés: gáz (cirko)
Állapota: új
Szobák száma: 5
Építés éve: 2025
Szintek száma: -

Részletes leírás

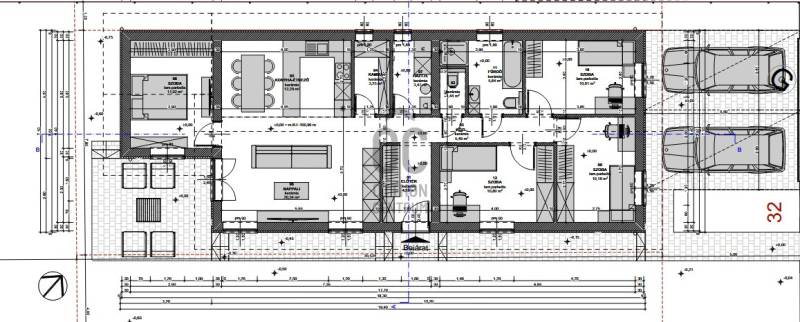
Szigethalmon önálló 99 nm-es családi ház Hév-hez közel 408 nm telekkelHamarosan birtokbavehető!Minden közmű bent van, már a fűtőtestek melegítenek, a belső burkolatok elkészültek.- 4 hálószoba, konyha-nappali, fürdőszoba, külön wc, kamra, háztartási helyiségHÁZ:- 2025-ben épül- minőségi anyagokból- beton sávalapra épült- lágy vízszigetelés, bitumenes vastaglemezzel , min 4 mm vastagságban- Porotherm tégla + 10 cm dryvit szigetelés- 30 cm födémszigetelés- cserép tetőfedés, műanyag nyílászárók- gázcirkó fűtés, radiátor minden helyiségben és hűtő-fűtő klíma- földszintes, remek elosztású , napfényes- riasztó előkészítés- elektromos kapu előkészítés- terasz- minden közmű bent vanTELEK:- 408 nm telek- autó beállási lehetőség- betonozott járdák és beálló- körbe kerítve, utcafronton lábazat + fakerítésElhelyezkedés:- Budapesttől 25 percre- Iskola, óvoda, bevásárlási lehetőség valamint a HÉV 15 perc sétáraHITEL ÉS CSOK igényelhető! Minden hivatalos ügyintézésben segítünk!20 %-TÓL MÁR MOST FOGLALHATÓ!ÁTADÁS: 2026 tavasz

További adatok

Telekterület: 408 m2
Kert mérete: 408 m2
Erkély mérete: 5 m2
Felszereltség: -
Parkolás: -
Kilátás: -
Egyéb extrák:  
-

Hirdető adatai

Hirdető neve: Otthon Centrum
Kapcsolattartó: Papp Klára
Hirdető telefonszáma: +36 70 461 9296
Honlap: -