Ház
Origó
HázOrigoval pont a központban

Szabolcs-Szatmár-Bereg megye, Nyíregyháza


 

Ingatlan adatai

Irányár: 51 953 000 Ft
Típus: lakás (újépítésű)
Kategória: eladó
Alapterület: 46 m2
Fűtés: gáz (cirko)
Állapota: új
Szobák száma: 2
Építés éve: 2026
Szintek száma: -

Részletes leírás

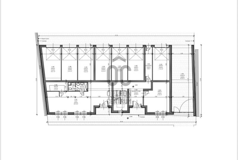
Új építésű lakások a Hatzel tér közelében – modern otthonok Nyíregyháza belvárosábanEladó új építésű, 1 szobás, amerikai konyhás lakások Nyíregyháza belvárosában, a Hatzel tér közvetlen közelében! A 10 lakásos társasház csendes utcában épül, minden lakáshoz erkély tartozik, amely tökéletes a pihenésre és a friss levegő élvezetére.A társasház modern, minőségi anyagokból készül:- 30 cm-es homlokzati szigetelés a kiváló hőszigetelésért- 3 rétegű műanyag nyílászárók a hő- és hangszigetelésért- Padlófűtés minden lakásban a komfortos hőérzetért- Klíma a nyári hónapokraA társasházhoz garázs és udvari gépkocsibeálló is vásárolható, így a parkolás mindig kényelmes és biztonságos.A lakások átadása 2026 nyarán várható, így a mostani foglalással biztosíthatja a kedvező elérhetőséget és a legjobb választást a rendelkezésre álló lakások közül.A hirdetésben szereplő információk a megbízótól kapott adatok alapján készültek, pontosságukért felelősséget nem vállalunk!Amennyiben vásárláshoz hitelre is szüksége van, független hitel tanácsadónk ingyenesen tud Önnek segítséget nyújtani a legjobb konstrukciók kiválasztásában és a folyamat lebonyolításában. Irodánk kereső ügyfeleinknek teljes körű szolgáltatást nyújt, szakszerű tanácsadással, energetikai tanúsítvány elkészítésével, hitelügyintézéssel és profi ügyvédi segítséggel. Abban az esetben ha az ingatlan felkeltette érdeklődését keressen bizalommal!Projekt bemutatásaÚj építésű, amerikai konyhás, 1 szobás lakások eladók Nyíregyháza belvárosában, a Hatzel tér közelében! A 10 lakásos társasház csendes utcában épül, erkélyes lakásokkal, garázs- és udvari beálló lehetőséggel. 30-as szigetelés, 3 rétegű nyílászárók, padlófűtés, klíma – minden adott a modern élethez. Átadás: 2026 nyár. Foglaljon időben!Garázs: 10.000.000 Ft Udvari beálló: 3.000.000 Ft1.emelet1.lakás: 49,66 nm + 3,60 nm erkély2.lakás: 48,16 nm + 3,60 nm erkély3.lakás 46,39 nm + 3,60 nm erkély4.lakás 48,29 nm + 3,24 nm loggia ELKELT!5.lakás 48,55 nm + 3,24 nm loggia 2. emelet1.lakás: 49,66 nm+ 3,60 nm erkély2.lakás: 48,16 nm + 3,60 nm erkély3.lakás: 46,39 nm + 3,60 nm erkély4.lakás: 45,61 nm + 3,24 nm loggia5.lakás: 45,63 nm + 3,24 nm loggiaA hirdetésben szereplő információk a megbízótól kapott adatok alapján készültek, pontosságukért felelősséget nem vállalunk! AZ ALAPRAJZ CSAK TÁJÉKOZTATÓ JELLEGŰ!Amennyiben vásárláshoz hitelre is szüksége van, független hitel tanácsadónk ingyenesen tud Önnek segítséget nyújtani a legjobb konstrukciók kiválasztásában és a folyamat lebonyolításában. Irodánk kereső ügyfeleinknek teljes körű szolgáltatást nyújt, szakszerű tanácsadással, energetikai tanúsítvány elkészítésével, hitelügyintézéssel és profi ügyvédi segítséggel. Abban az esetben ha az ingatlan felkeltette érdeklődését keressen bizalommal!

További adatok

Telekterület: -
Kert mérete: -
Erkély mérete: 3 m2
Felszereltség: -
Parkolás: -
Kilátás: utcai
Egyéb extrák:  
-

Hirdető adatai

Hirdető neve: Otthon Centrum
Kapcsolattartó: Ugrai Roland
Hirdető telefonszáma: +36 70 716 8651
Honlap: -