Ház
Origó
HázOrigoval pont a központban

Hajdú-Bihar megye, Debrecen


 

Ingatlan adatai

Irányár: 81 033 000 Ft
Típus: lakás (újépítésű)
Kategória: eladó
Alapterület: 51 m2
Fűtés: -
Állapota: új
Szobák száma: 2
Építés éve: 2025
Szintek száma: -

Részletes leírás

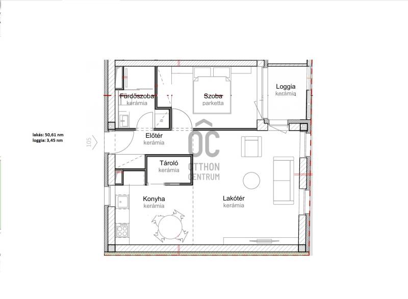
Debrecen abszolút Belvárosában, a Nagytemplomhoz közeli részén kerül kivitelezésre ez az egyedi tervezésű, 17 lakásos, liftes társasház.Válasszon a piacon legkeresettebb méretű,még elérhető 35-51 nm-es, loggiás, nappali +1 vagy 2 szobás lakáskínálatból!A 4 emeletes társasház két utcáról is megközelíthető, a lakások kiváló elrendezésűek.Gépkocsi beállók ( 10 Mft/db) a földszinten és a -1 szinten találhatók.Ez az 1. emeleti lakás 50,74 nm-es, nappali-étkező-konyha +1 szobás, 3,68 nm-es loggiával. Nappali+ 2 szobássá alakítható.Műszaki adatok:- teherhordó falak Porotherm 30 N+F- belső térelválasztó falak gipszkartonból- hőszigetelése 15 cm THERMODAM rendszer, 1,5 cm nemes vakolattal- házközponti hőszivattyús fűtés, minden helyiségben padlófűtés- lakásonként egyedi hőmennyiség mérő- hűtés: hőszivattyús rendszerrel, vagy AUX hőszivattyús 2,7 kw-os klímával- műanyag nyílászárók 3 rétegű hőszigetelt üvegezéssel- beépített elektromos, távirányítós redőnyök- 90X200-as üvegfalú zuhanyózóA belvárosban található ingatlan pár perc sétára van a Nagytemplomtól, a Piactól és a Bevásárló központoktól.Projekt bemutatása--

További adatok

Telekterület: -
Kert mérete: -
Erkély mérete: 3 m2
Felszereltség: -
Parkolás: -
Kilátás: utcai
Egyéb extrák:  
-

Hirdető adatai

Hirdető neve: Otthon Centrum
Kapcsolattartó: Rácz Zsolt
Hirdető telefonszáma: +36 70 469 3726
Honlap: -