Ház
Origó
HázOrigoval pont a központban

Tolna megye, Szekszárd


 

Ingatlan adatai

Irányár: 280 000 Ft/hó
Típus: lakás (újépítésű)
Kategória: kiadó
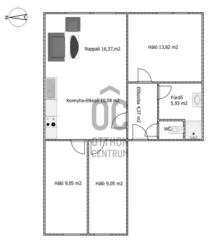
Alapterület: 71 m2
Fűtés: távfűtés
Állapota: új
Szobák száma: 4
Építés éve: 2024
Szintek száma: -

Részletes leírás

Az első emeleti lakás 2024-ben készült el, Ytong falazattal, azon 15 cm szigeteléssel.Fűtése távfűtés egyedi méréssel.Zárt lépcsőházból érhető el. A házban 3 lakás található összesen, így nem fogják zavarni a szomszédok.Kaputelefon rendszer működik a házban.A lépcsőház világítása mozgásérzékelős.Ablakok 3 rétegű műanyagok szúnyoghálóval ellátva. Méretük miatt a lakás rendkívül világos.A burkolatok greslap, illetve laminált padló a hálószobákban.Az egybe nyitott nappali-étkező-konyha bútora méretre készült, beépített konyhagépekkel van ellátva.A három hálószoba mindegyike külön nyílik.Nagy teljesítményű klíma gondoskodik a hűtésről a nyári melegben, illetve a fűtést is kiválthatja.A zuhanyzós fürdőszoba szintén bútorozott.A képeken látható minden gép, bútor és világítótest a lakás tartozéka.A kivitelezéskor ügyeltek a minőségi anyaghasználatra, és az esztétikus kialakításra.Amennyiben szeretne egy kifogástalan állapotú, új építésű lakásban élni a város szívében, akkor megtalálta, amit keresett!Bolt, óvoda, iskola és minden szolgáltató 3 percen belül elérhető gyalogosan.A dohányzás és a kisállattartás a lakásban nem megengedett.Egy havi bérleti díjjal, két havi kaucióval, közjegyző előtti nyilatkozattal azonnal bérbe vehető.Hívjon, és szívesen megmutatom élőben!kiadó 2 szoba 2. emelet beépített konyha új építésű városközpont zárt lépcsőház OC U0047975

További adatok

Telekterület: -
Kert mérete: -
Erkély mérete: -
Felszereltség: -
Parkolás: -
Kilátás: utcai
Egyéb extrák:  
-

Hirdető adatai

Hirdető neve: Otthon Centrum
Kapcsolattartó: Dániel Lilla Anna
Hirdető telefonszáma: +36 70 388 6296
Honlap: -