Ház
Origó
HázOrigoval pont a központban

Budapest, VIII.kerület


 

Ingatlan adatai

Irányár: 97 990 000 Ft
Típus: lakás (újépítésű)
Kategória: eladó
Alapterület: 69 m2
Fűtés: -
Állapota: új
Szobák száma: 3
Építés éve: 2026
Szintek száma: -

Részletes leírás

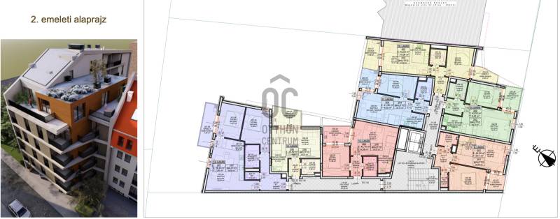
❗️OKOS OTTHON - Corvin negyednélÚj építésű lakások még bevezető áron!Otthon / Befektetés⏺️ Lokáció:- 08. kerület dinamikusan fejlődő része- belvárosi közlekedés- METRO, főbb közlekedési csomópontok karnyújtásnyira- EGYETEMEK, FŐISKOLÁK közelében- kiváló infrastruktúra❗️ Műszaki tartalom:- kornak megfelelő, igényes kivitelezés- NGBS OKOS OTTHON rendszer- hőszivattyús fűtésrendszer- falhűtés- zöld kert, öntözőrendszerrel⬆️ Lakások:- szuper praktikus tervezés- választható burkolatok- terasz, erkély minden lakáshoz- garázs igény szerint✅ Hitelügyintézés - kedvező kamatozással, egyénre szabva!Jogi segítségnyújtás igény esetén!Keressen bizalommal!Projekt bemutatásaBudapest, VIII. kerület dinamikusan fejlődő részén, 36 lakásos társasház igényes, a kornak megfelelő műszaki tartalommal rendelkező projekt, NGBS okos otthon rendszerrel, választható burkolatokkal 2026. negyedik negyedévre tervezett átadással.

További adatok

Telekterület: -
Kert mérete: -
Erkély mérete: 8 m2
Felszereltség: -
Parkolás: -
Kilátás: kertre néző
Egyéb extrák:  
-

Hirdető adatai

Hirdető neve: Otthon Centrum
Kapcsolattartó: Krassóy Ágnes
Hirdető telefonszáma: +36 70 469 3921
Honlap: -